home page > Annunci immobiliari in Italia > Lombardia > Brescia > Mazzano > Negozi uffici capannoni in vendita > Scheda immobile

Negozi uffici capannoni in vendita a Mazzano

COMPILA IL MODULO SOTTOSTANTE PER RICEVERE MAGGIORI INFORMAZIONI







Invia la richiesta ad altre agenzie
Accetto il trattamento dei miei dati



Venturoli&partners di venturoli riccardo

Via delle fiamme verdi 2
25081 Bedizzole (BS)

030675076    Riferimenti: Riccardo Venturoli

Mazzano
Prezzo: € 150.000
F
1
70
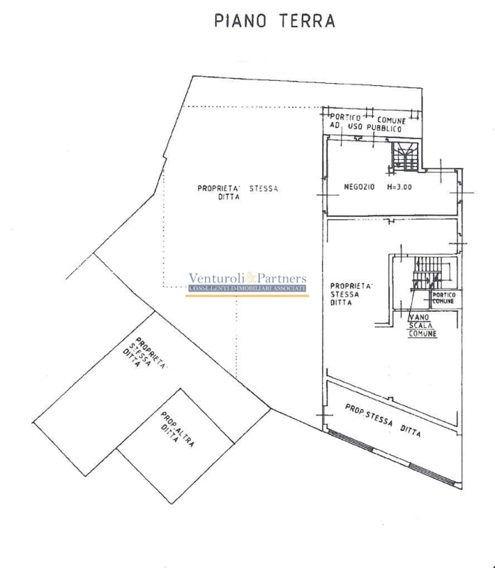
Piano terra



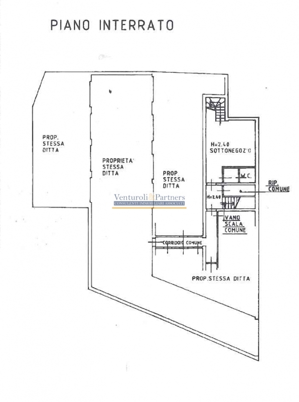
Descrizione:
Proponiamo in vendita un luminoso negozio di 70 mq, ideale per avviare la tua attività commerciale. Situato lungo una strada principale con ben 5 vetrine che garantiscono massima visibilità.il negozio si presenta vuoto e pronto all'uso, permettendoti di personalizzare gli spazi secondo le tue esigenze. Include anche un magazzino utile per gestire al meglio le forniture. Il bagno è già presente, rendendo l'ambiente funzionale.le spese condominiali sono contenute a soli 35 €/mese. La posizione strategica del negozio assicura non solo alta visibilità ma anche facilità d'accesso grazie alla presenza di parcheggi nelle vicinanze.




Caratteristiche immobile:
Codice inserzione: 1764215591
Rif. Annuncio: RN001
Provincia: Brescia
Comune: Mazzano
Superficie (Mq) : 70 Mq.
Tipo immobile: Negozi uffici capannoni
Stato immobile: usato
Anno costruzione/ristrutturazione: 2000
Piano: Piano terra
Bagni: 1

Costi:
Prezzo € 150.000


Efficienza energetica:
Classe energetica: F
Indice di prestazione energetica (EPgl): 145 kWh/mc annui
Riscaldamento: autonomo