Descrizione:
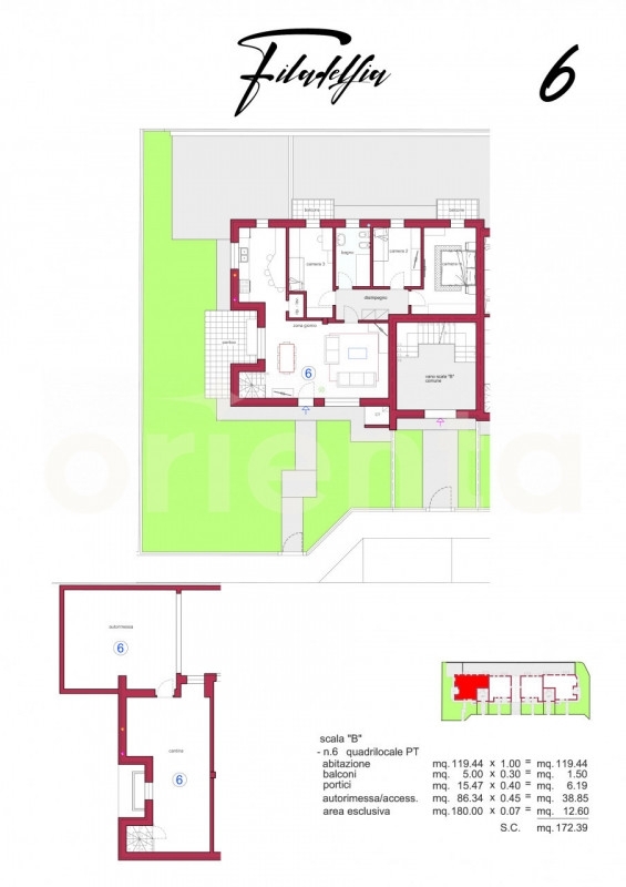
Orienta è lieta di commercializzare filadelfia, un'imminente realizzazione in via generali f.lli lechi a montichiari composta da 8 splendide unità abitative situate in un contesto signorile ed esclusivo molto vicino a tutti i poli principali di montichiari come polo commerciale, sportivo, sanitario e scolastico. Filadelfia si dispone in quattro appartamenti siti al piano terra, due trilocali e due quadrilocali dove tutte le unità hanno l'ingresso indipendente, giardino in proprietà, accesso diretto al box con possibile taverna e box, doppio box e doppio bagno. I quattro appartamenti a piano primo si distinguono anch'essi in due trilocali e due quadrilocali, ogni appartamento possiede ampie terrazze abitabili adiacenti al soggiorno, ampie vetrate, doppio bagno, doppio box ed accesso diretto al solarium in proprietà posto al piano secondo. I solarium oltre ad una magnifica veduta di montichiari con il suo splendido castello e duomo ha tutte le dotazioni per area ristoro e ricreativa. le dotazioni tecniche prevedono superfici riscaldanti a pavimento con sistema ibrido composto da caldaia a condesazione e pompa di calore e fotovoltaico per ogni unità, impianto elettrico e gestione con sistema domotico in bus knx, infissi in pvc linea finstral, oscuranti motorizzati e ampissima scelta sulle ceramiche di rivestimento interne. per ulteriori informazioni ed approfondimenti per i prezzi, capitolato e consegna contattateci per fissare un appuntamento in agenzia.si specifica che le immagini rappresentate, a discrezione della proprietà potrebbero subire delle leggere modifiche al fine di migliorare maggiormente il prodotto per estetica e funzionalità.