home page > Annunci immobiliari in Italia > Lombardia > Brescia > Montichiari > Negozi uffici capannoni in vendita > Scheda immobile

Negozi uffici capannoni in vendita a Montichiari

COMPILA IL MODULO SOTTOSTANTE PER RICEVERE MAGGIORI INFORMAZIONI







Invia la richiesta ad altre agenzie
Accetto il trattamento dei miei dati



Orienta immobiliare srl

Via mantova 22
25018 Montichiari (BS)

0309660062    0306187534    Riferimenti: Segreteria

Montichiari
Prezzo: € 450.000
680



Descrizione:
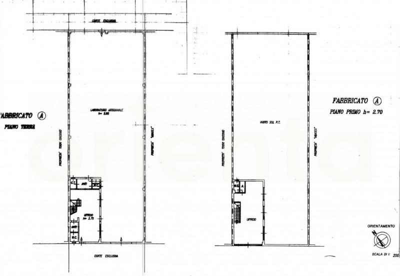
In posizione strategica a montichiari, proponiamo in vendita capannone artigianale/industriale di circa 680 mq, completo di uffici, impianti efficienti e piazzale esterno cintato, ideale per attività produttive, logistiche o artigianali.l'immobile, costruito a metà anni '90, è stato completamente ristrutturato ed è oggi pronto all'uso, senza necessità di interventi. caratteristiche principalisuperficie coperta: circa 680 mq (capannone + uffici)piazzale esterno cintato: circa 400 mqaltezza interna: 6,00 metricopertura nuova (assenza di eternit)impianti elettrici, riscaldamento e climatizzazione funzionanti e a normauffici luminosi e ben distribuiticlasse energetica: g 65,20 kwh/mq/annolibero da febbraio 2026 - ottima accessibilità - spazi versatili e facilmente adattabili - immobile efficiente e curato - ideale anche per uso investimentoimmobile di forte interesse per posizione e tipologia, potenzialmente locabile a € 28.000 annui + iva.




Caratteristiche immobile:
Codice inserzione: 1766030730
Rif. Annuncio: AG013
Provincia: Brescia
Comune: Montichiari
Superficie (Mq) : 680 Mq.
Tipo immobile: Negozi uffici capannoni
Anno costruzione/ristrutturazione: 1998

Costi:
Prezzo € 450.000


Efficienza energetica: