home page > Annunci immobiliari in Italia > Lombardia > Brescia > Ome > Case e ville indipendenti in vendita > Scheda immobile

Case e ville indipendenti in vendita a Ome

COMPILA IL MODULO SOTTOSTANTE PER RICEVERE MAGGIORI INFORMAZIONI







Invia la richiesta ad altre agenzie
Accetto il trattamento dei miei dati



360 group s.r.l.

Via xxv aprile 96
25038 Rovato (BS)

0307701622.0302522800    Riferimenti: Michele Garosio

Ome
Prezzo: € 660.000
A4
3
2
194
Ultimo piano
1



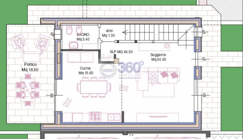
Descrizione:
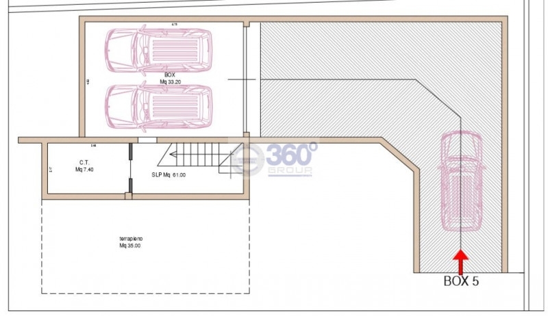
Ome - cerezzata. In redisence esclusivo di sole cinque unità e immerso nel verde, proponiamo in vendita una villa di nuova costruzione, perfetta per chi cerca indipendenza, comfort e spazi personalizzabili.descrizione immobilela casa si sviluppa su più livelli. Al piano terra, l'ingresso si apre su una luminosa zona giorno con salotto e cucina abitabile separata, con possibilità di rendere i due ambienti comunicanti a seconda delle proprie esigenze. Completano il piano un bagno di servizio, una comoda lavanderia, oltre a un portico sul retro che affaccia su un giardino privato di circa 250 mq.al primo piano si sviluppa la zona notte, con quattro diverse soluzioni progettuali tra cui scegliere.è possibile optare per tre camere e due bagni, oppure valutare altre configurazioni personalizzate in base alle proprie necessità, tutte visionabili nei progetti disponibili.salendo, troviamo una mansarda spaziosa con predisposizione per lavanderia e bagno, uno spazio che verrà lasciato al rustico per essere terminato a piacimento.completano la proprietà un box doppio in lunghezza direttamente al piano terra e due posti auto esclusivi.informazioni tecniche:- classe energetica a4- impianto fotovoltaico da 6 kw con batteria di accumulo- impianto di climatizzazione- serramenti in pvc- persiane in alluminio- v.m.c. (ventilazione meccanica controllata) per il ricircolo dell'aria in ogni stanza- basculante sezionale elettrificata- pavimenti in gres porcellanato smaltato di prima scelta




Caratteristiche immobile:
Codice inserzione: 1758595577
Rif. Annuncio: 303 B
Provincia: Brescia
Comune: Ome
Superficie (Mq) : 194 Mq.
Tipo immobile: Case e ville indipendenti
Stato immobile: nuovo
Anno costruzione/ristrutturazione: 2026
Piano: Ultimo piano
Camere: 3
Garage: Doppio
Posti auto scoperti: 1 posto auto
Bagni: 2 + lavanderia

Costi:
Prezzo € 660.000


Efficienza energetica:
Classe energetica: A4
Riscaldamento: autonomo a pavimento