home page > Annunci immobiliari in Italia > Lombardia > Brescia > Puegnago sul Garda > Negozi uffici capannoni in affitto > Scheda immobile

Negozi uffici capannoni in affitto a Puegnago sul Garda

COMPILA IL MODULO SOTTOSTANTE PER RICEVERE MAGGIORI INFORMAZIONI







Invia la richiesta ad altre agenzie
Accetto il trattamento dei miei dati



Abeni immobiliare - agenzia puegnago del garda

Via nazionale 61 - fraz. Raffa
25080 Puegnago sul Garda (BS)

0365.651613

Puegnago sul Garda
Prezzo: € 1.800
D
2
160
99



Descrizione:
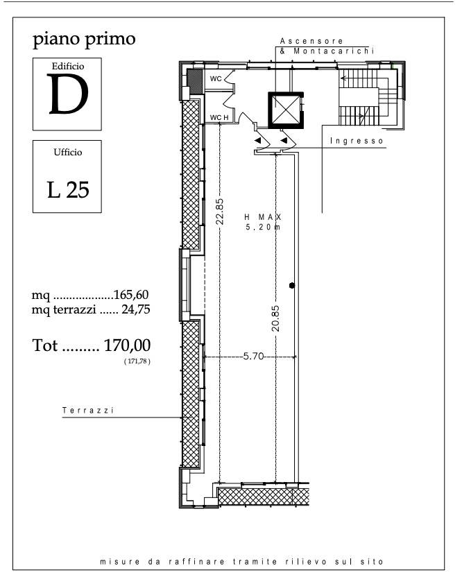
Proponiamo a raffa di puegnago loft open space-ufficio/ studio al primo, di circa mq 160 + mq 20 di terrazze, dotato di ascensore.inserito in un curatissimo residence commerciale, videosorvegliato, fronte strada quindi con la massima visibilità e libero sui tre lati il loft è al rustico per cui con possibilità di personalizzarlo, travi a vista, altezza massima interna 5,40 metri.dotato di due bagni, zona relax / cucinotto, riscaldamento a pavimento e aria condizionata.comodo e facile da raggiungere.tantissimi parcheggi disponibili.l'immobile viene consegnato completamente finito, tempo di consegna 120 gg.e' situato sulla via principale di collegamento per desenzano, salò e la valle sabbia.certificazione energetica : d. Classe energetica: d




Caratteristiche immobile:
Codice inserzione: 1765946145
Rif. Annuncio: 758B
Provincia: Brescia
Comune: Puegnago sul Garda
Zona: Raffa  
Superficie (Mq) : 160 Mq.
Tipo immobile: Negozi uffici capannoni
Stato immobile: nuovo
Piano: Ultimo piano
Bagni: 2
Terrazze: 1

Costi:
Prezzo € 1.800


Efficienza energetica:
Classe energetica: D
Riscaldamento: autonomo