home page > Annunci immobiliari in Italia > Lombardia > Como > Bizzarone > Case e ville a schiera in vendita > Scheda immobile

Case e ville a schiera in vendita a Bizzarone

COMPILA IL MODULO SOTTOSTANTE PER RICEVERE MAGGIORI INFORMAZIONI







Invia la richiesta ad altre agenzie
Accetto il trattamento dei miei dati



Immobiliare canturina

Via dei mille, 5
22063 Cantù (CO)

031701396    3484205749    Riferimenti: Bidoggia Monica

Bizzarone
Prezzo: € 460.000
3
180



Descrizione:
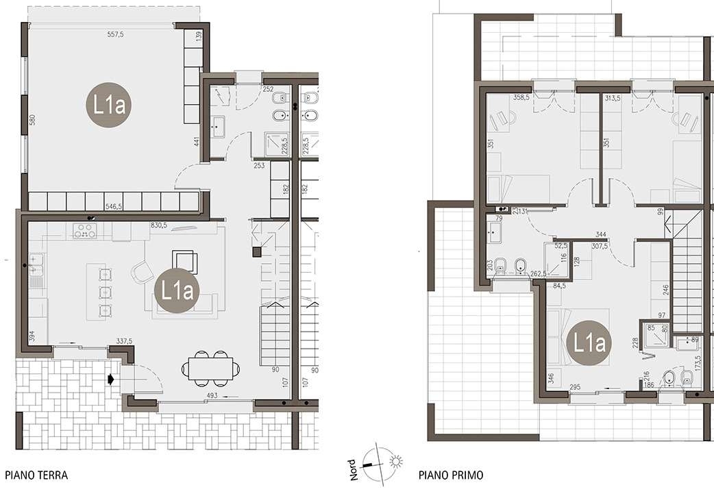
A due passi dal confine svizzero, in una tranquilla zona residenziale a soli 20 minuti da como e dall'autostrada, proponiamo una moderna porzione di bifamiliare. La soluzione, disposta su due livelli, è composta al piano terra da ingresso, ampio soggiorno con cucina a vista, bagno di servizio e giardino privato ideale per momenti di relax all'aperto. Al piano primo troviamo la camera matrimoniale con bagno padronale e terrazzo, oltre a due spaziose camerette, entrambe dotate di balcone. Ottime le finiture con riscaldamento a pavimento con pompa di calore alimentata da fotovoltaico e pannelli solari. Classe energetica a1. Completano la proprietà un ampio box doppio al piano terra e la posizione soleggiata e riservata, perfetta per chi desidera vivere nel verde senza rinunciare alla comodità dei collegamenti. Richiesta euro 460.000,00 per appuntamenti o informazioni oscar colombo il presente annuncio non costituisce alcun vincolo contrattuale e tutte le caratteristiche inerenti gli immobili pubblicati e le misure eventualmente rilevate o indicate devono considerarsi indicative.classe energetica:




Caratteristiche immobile:
Codice inserzione: 1774397443
Rif. Annuncio: V002001
Provincia: Como
Comune: Bizzarone
Superficie (Mq) : 180 Mq.
Tipo immobile: Case e ville a schiera
Camere: 3

Costi:
Prezzo € 460.000


Efficienza energetica: