home page > Annunci immobiliari in Italia > Lombardia > Como > Cantù > Negozi uffici capannoni in affitto > Scheda immobile

Negozi uffici capannoni in affitto a Cantù

COMPILA IL MODULO SOTTOSTANTE PER RICEVERE MAGGIORI INFORMAZIONI







Invia la richiesta ad altre agenzie
Accetto il trattamento dei miei dati



Immobiliare canturina

Via dei mille, 5
22063 Cantù (CO)

031701396    3484205749    Riferimenti: Bidoggia Monica

Cantù
Prezzo: € 1.100
F
120



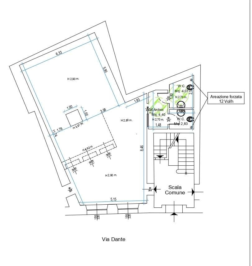
Descrizione:
Nel cuore della città, a pochi passi da piazza garibaldi, proponiamo in locazione un elegante e versatile ufficio, ideale per diverse attività professionali. L'immobile termoautonomo, recentemente ristrutturato, è dotato di impianto di climatizzazione e cablaggio. Gli spazi interni comprendono una luminosa sala riunioni, due uffici separati e doppi servizi, garantendo comfort e funzionalità. Disponibile da fine maggio, con la possibilità di arredo. Classe energetica f. Canone mensile euro 1.100,00. Per informazioni o appuntamenti oscar colombo il presente annuncio non costituisce alcun vincolo contrattuale e tutte le caratteristiche inerenti gli immobili pubblicati e le misure eventualmente rilevate o indicate devono considerarsi indicative.classe energetica: f 262,51 kwh/m2 a




Caratteristiche immobile:
Codice inserzione: 1773187840
Rif. Annuncio: A000367
Provincia: Como
Comune: Cantù
Superficie (Mq) : 120 Mq.
Tipo immobile: Negozi uffici capannoni

Costi:
Prezzo € 1.100


Efficienza energetica:
Classe energetica: F
Indice di prestazione energetica (EPgl): 262.51 kWh/mc annui