home page > Annunci immobiliari in Italia > Lombardia > Como > Cermenate > Attività commerciali in vendita > Scheda immobile

Attività commerciali in vendita a Cermenate

COMPILA IL MODULO SOTTOSTANTE PER RICEVERE MAGGIORI INFORMAZIONI







Invia la richiesta ad altre agenzie
Accetto il trattamento dei miei dati



Quimmo agency

Via galileo galilei 6
48018 Faenza (RA)

0299944698

Cermenate
Prezzo: € 2.000.000
2
3620



Descrizione:
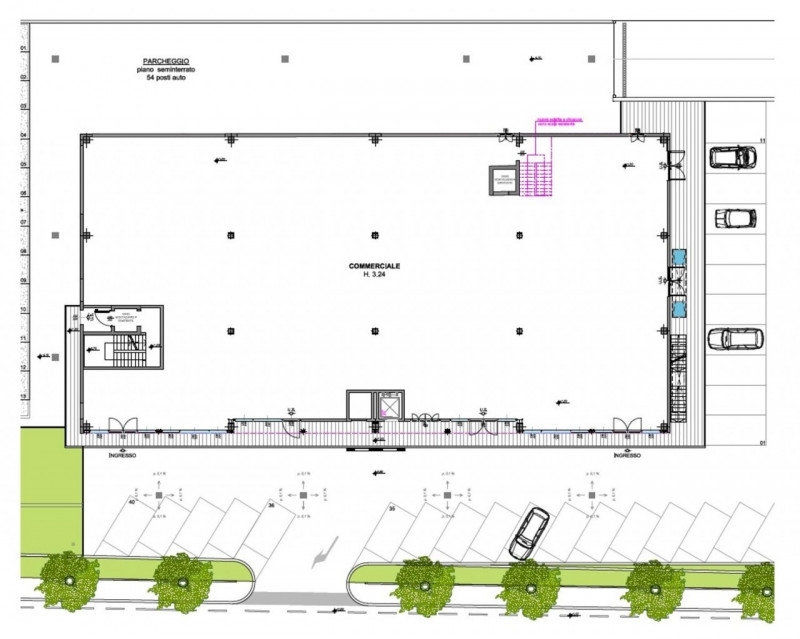
Vendesi immobile allo stato attuale rustico con licenza commerciale di media struttura di vendita.in posizione strategica, nel cuore di cermenate (co), proponiamo un capannone commerciale di 3.620 mq che si affaccia direttamente sulla strada provinciale 35 milano-como, arteria ad altissimo passaggio e visibilità. Un'opportunità unica per chi desidera valorizzare il proprio business in un contesto di grande richiamo.l'immobile, servito da due comodi accessi carrabili, si presenta al rustico, pronto per essere modellato secondo le esigenze dell'investitore o dell'operatore commerciale: uno spazio da plasmare per dare forma a nuove idee e progetti.la superficie si articola su tre livelli:piano interrato 1.250 mq da destinare a parcheggio coperto o magazzino, con ampie possibilità di utilizzo.piano terra circa 1.200 mq perfetti per showroom, spazi espositivi o attività commerciali di forte impatto.piano primo circa 1.170 mq ideali per uffici, studi professionali o centri servizi moderni e funzionali.un valore aggiunto è la licenza per 'centro commerciale di media struttura di vendita', che consente attività food e non food, ampliando le possibilità di sviluppo e investimento.è inoltre prevista la possibilità di frazionamento in lotti a partire da 600 mq, rendendo la proposta flessibile e adatta a diverse esigenze imprenditoriali.-prezzo di vendita: € 2.000.000-disponibilità anche in locazione: piano terra a € 160.000 annuiun immobile pensato per chi guarda al futuro con ambizione, pronto ad accogliere realtà dinamiche e innovative.per informazioni o per fissare un appuntamento, siamo a disposizione.




Caratteristiche immobile:
Codice inserzione: 1758683084
Rif. Annuncio: 2537243
Provincia: Como
Comune: Cermenate
Superficie (Mq) : 3620 Mq.
Tipo immobile: Attività commerciali
Bagni: 2

Costi:
Prezzo € 2.000.000


Efficienza energetica: