home page > Annunci immobiliari in Italia > Lombardia > Como > Como > appartamenti in vendita > Scheda immobile

Appartamento in vendita a Como

COMPILA IL MODULO SOTTOSTANTE PER RICEVERE MAGGIORI INFORMAZIONI







Invia la richiesta ad altre agenzie
Accetto il trattamento dei miei dati



Alto lario

Via dante alighieri, 31
22100 Como

031307356    0314100642    3381888662

Como
Prezzo: € 302.000
2
98



Descrizione:
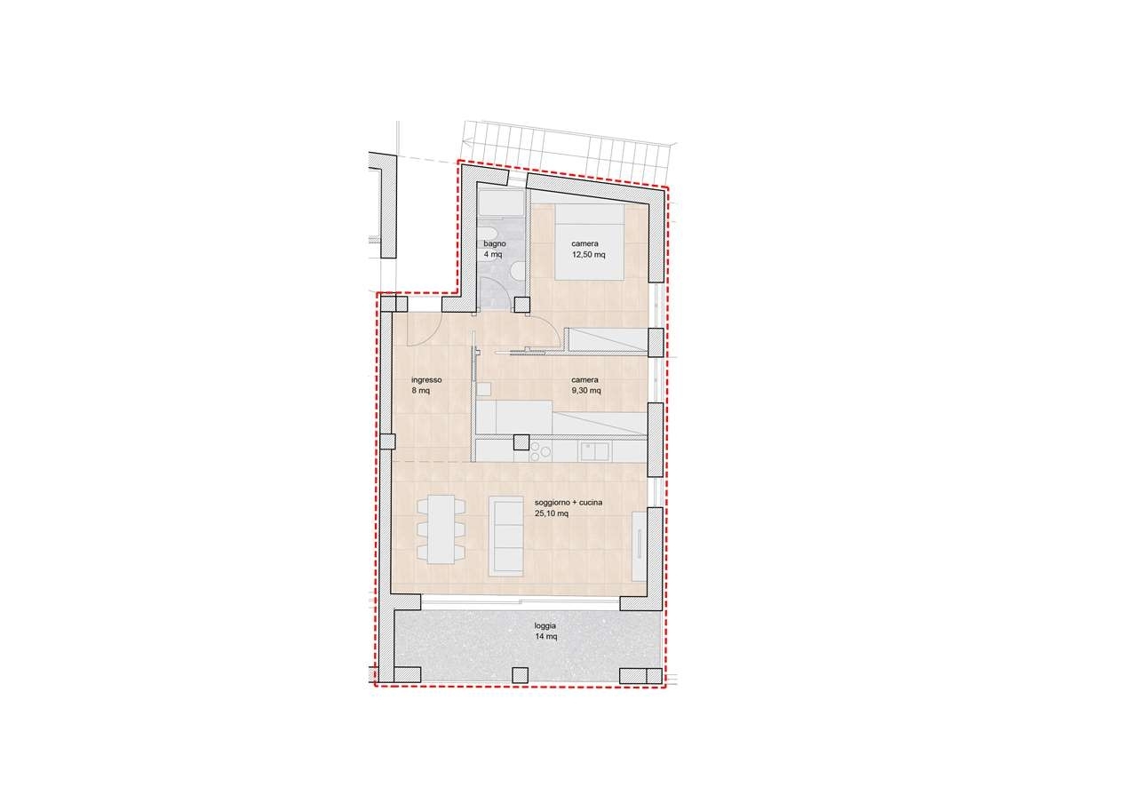
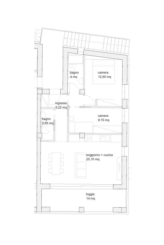
Nuovissima costruzione in classe a.scopri questo splendido trilocale in fase di realizzazione, nella zona in riqualificazione delle caserme: un'opportunità unica per vivere (o investire) con massima efficienza energetica e spazi esterni rari in città.vera occasione prenotazione con soli 1.000 €su questa costruzione l'acquirente non versa nessuna provvigione di mediazione.consegna stimata: 15 mesi.contestol'appartamento è inserito in un complesso di 2 blocchi per un totale di 10 unità.si trova nel blocco b, composto da sole 4 unità: un contesto raccolto che garantisce più privacy e parti comuni meno affollate.caratteristiche principaliclasse energetica a: comfort e risparmio energetico garantitisuperficie: circa 98 m composizione: ingresso disimpegnato; soggiorno con cucina open space collegato a loggia di 14 m tramite ampie vetrate scorrevoli; due camere da letto; due bagnilastrico solare privato (terrazza rooftop): circa 100 m di spazio all'aperto esclusivo, vera rarità in cittàcantina: spazio extra per le tue esigenzeimpianti e finiture: pompe di calore + fotovoltaico, capitolato fascia alta, personalizzazioni possibiliagevolazioni fiscali: € 30.000 (soggette a requisiti)posto auto/box: opzione obbligatoria € 25.000è possibile personalizzare la distribuzione degli ambienti e scegliere le finiture secondo il proprio gusto.posizione strategica:zona servita e vicina ai mezzi pubbliciarea in riqualificazione con grande potenziale di crescitanon perdere questa occasione! contattaci subito per maggiori informazioni e per prenotare una visita.classe energetica:




Caratteristiche immobile:
Codice inserzione: 1756768288
Rif. Annuncio: Residenza Castellini 9
Provincia: Como
Comune: Como
Superficie (Mq) : 98 Mq.
Tipo immobile: Appartamento
Camere: 2

Costi:
Prezzo € 302.000


Efficienza energetica: