Descrizione:
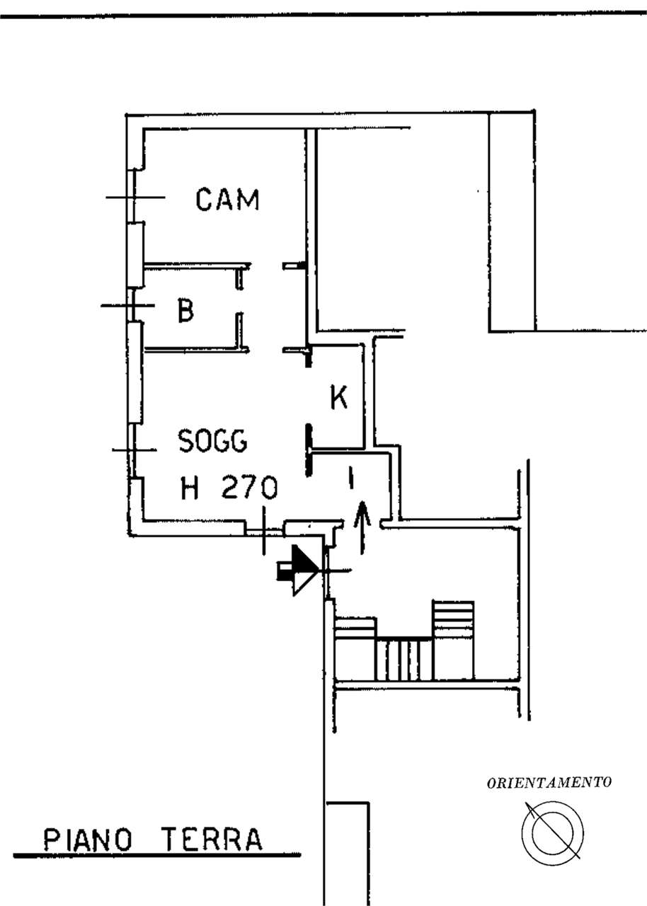
In posizione comoda e ben servita, a pochi passi dal centro storico di mariano comense e a soli 200 metri dalla stazione ferroviaria, proponiamo in vendita un bilocale in buone condizioni, situato al piano terra di una palazzina all'interno di un curato complesso residenziale composto da tre edifici e dotato di ampio parco condominiale.l'appartamento si compone di: ingresso che conduce alla zona giorno con angolo cottura, disimpegno, camera da letto matrimoniale e bagno finestrato. a completare la proprietà: una cantina e un posto auto coperto in autorimessa al piano interrato. Ulteriore posto auto non di proprietà disponibile nel cortile comune (ad esaurimento posti).dotazioni: serramenti in alluminio con doppi vetri, porta blindata, riscaldamento autonomo con caldaia a condensazione.spese condominiali contenute: circa €1.000/anno." ideale per chi cerca comodità, tranquillità e servizi a portata di mano, in un contesto verde e ben curato. Perfetto anche come investimento o prima casa.classe energetica: c