home page > Annunci immobiliari in Italia > Lombardia > Cremona > Crema > Negozi uffici capannoni in affitto > Scheda immobile

Negozi uffici capannoni in affitto a Crema

COMPILA IL MODULO SOTTOSTANTE PER RICEVERE MAGGIORI INFORMAZIONI







Invia la richiesta ad altre agenzie
Accetto il trattamento dei miei dati



Sezione aurea srl

Via manzoni - 6
26013 Crema (CR)

0373500961    Riferimenti: Valentina Licari

Crema
Prezzo: € 750
G
1
95



Descrizione:
Crema centro storico negozio con due ampie vetrinesituato a soli 50 metri dalla rinomata via mazzini, nel cuore pulsante del centro storico, proponiamo un locale commerciale.perché scegliere questo spazio:massima visibilità: la doppia esposizione con due ampie vetrine garantisce una luminosità naturale straordinaria e una vetrina continua sul flusso pedonale del centro.superficie generosa: 120 mq totali studiati per ottimizzare ogni centimetro della tua attività.piano terra dinamico: 70 mq di area vendita open-space, pronta per essere personalizzata.interrato 'attivo': 50 mq al piano interrato, completamente riscaldato e collegato internamente.caratteristiche principali:posizione strategica: adiacente a via mazzini (zona di altissimo passaggio).comfort totale: ambienti riscaldati su entrambi i livelli.servizi: bagno interno.




Caratteristiche immobile:
Codice inserzione: 1776227965
Rif. Annuncio: 32851005-117
Provincia: Cremona
Comune: Crema
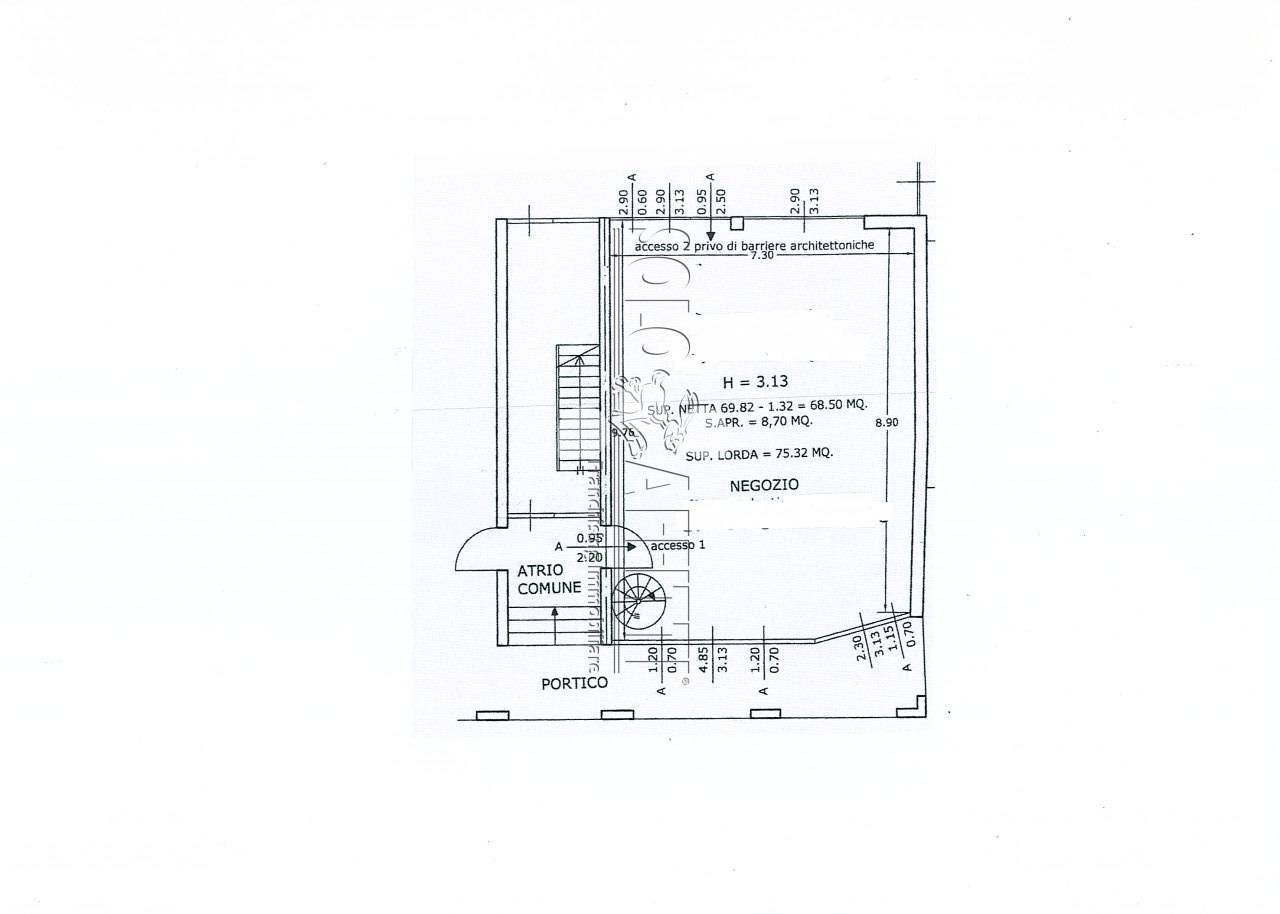
Superficie (Mq) : 95 Mq.
Tipo immobile: Negozi uffici capannoni
Stato immobile: recente
Stato al rogito: Libero
Garage: Singolo
Bagni: 1

Costi:
Prezzo € 750


Efficienza energetica:
Classe energetica: G
Riscaldamento: autonomo