home page > Annunci immobiliari in Italia > Lombardia > Lecco > Colico > Case e ville indipendenti in vendita > Scheda immobile

Case e ville indipendenti in vendita a Colico

COMPILA IL MODULO SOTTOSTANTE PER RICEVERE MAGGIORI INFORMAZIONI







Invia la richiesta ad altre agenzie
Accetto il trattamento dei miei dati



Le mille e una casa

Via mazzini 13
23823 Colico (LC)

0341933244

Colico
Prezzo: € 1.200.000
3
4
194



Descrizione:
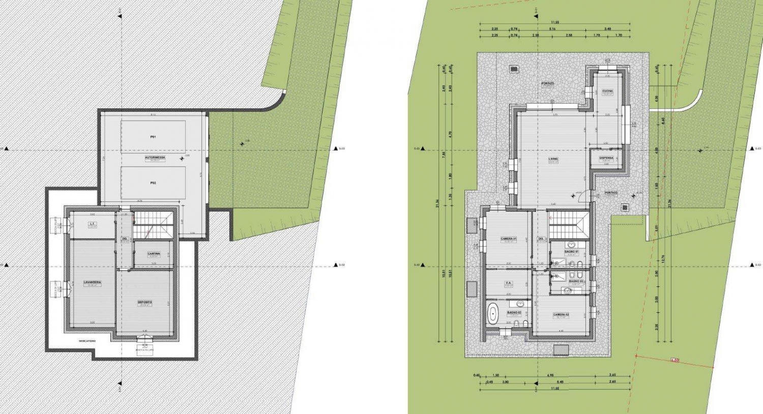
Esclusiva le mille e. Una casa proponiamo in vendita a colico, in posizione riservata e immersa nella natura, splendida villa singola in fase di realizzazione, inserita all'interno di un meraviglioso parco naturale di circa 34.000 mq, che garantisce privacy, tranquillità e un'atmosfera di assoluta armonia.la villa si sviluppa principalmente su un unico livello abitativo al piano terra, con una pianta moderna e funzionale.l'ingresso conduce alla cucina con affaccio su ampio portico, collegato alla zona giorno con grandi vetrate panoramiche, anch'essa in diretta connessione a un secondo porticato esterno: uno spazio perfetto per vivere l'abitare dentro-fuori in ogni stagione.la zona notte prevede tre camere da letto, tutte con bagno dedicato; in particolare la camera padronale dispone del proprio bagno privato e di un affaccio privilegiato sul verde.al piano interrato trovano spazio una grande autorimessa, lavanderia, taverna, locale tecnico e un'utile intercapedine per garantire un ambiente asciutto e durevole nel tempo.personalizzazione e tecnologial'immobile è pensato con altissimo livello tecnologico: • classe energetica elevata • pompa di calore • pannelli fotovoltaici e solare termico • serramenti di ultima generazione • raffinate finiture in pietra naturale a vista • possibilità di realizzare piscina privatain questa fase costruttiva è possibile scegliere le finiture, i materiali e i dettagli, dando forma allo stile della tua nuova casa.vista lago garantitala posizione sopraelevata regala una splendida vista sul lago, rendendo questa villa un'oasi unica, a pochi minuti dai servizi ma lontana da ogni rumore.possibilità di acquisto • villa ultimata: eu. 1.200.000 • stato avanzato (f3 rustico con cappotto e soglie): eu. 750.000 • terreno edificabile con progetto approvato e oneri pagati: eu. 400.000questa villa non è solo una casa.è un progetto di vita, un luogo dove la natura incontra il comfort e l'architettura valorizza ogni sguardo e ogni respiro.contattaci per maggiori informazioni e per visitare la proprietà.le mille e. Una casa classe energetica: a4




Caratteristiche immobile:
Codice inserzione: 1763094640
Rif. Annuncio: 666VILLA
Provincia: Lecco
Comune: Colico
Zona: Curcio  
Superficie (Mq) : 194 Mq.
Tipo immobile: Case e ville indipendenti
Stato immobile: nuovo
Camere: 3
Bagni: 4
Terrazze: 1

Costi:
Prezzo € 1.200.000


Efficienza energetica:
Riscaldamento: autonomo