home page > Annunci immobiliari in Italia > Lombardia > Lecco > Colico > Negozi uffici capannoni in vendita > Scheda immobile

Negozi uffici capannoni in vendita a Colico

COMPILA IL MODULO SOTTOSTANTE PER RICEVERE MAGGIORI INFORMAZIONI







Invia la richiesta ad altre agenzie
Accetto il trattamento dei miei dati



Le mille e una casa

Via mazzini 13
23823 Colico (LC)

0341933244

Colico
Prezzo: € 180.000
G
1
77
1



Descrizione:
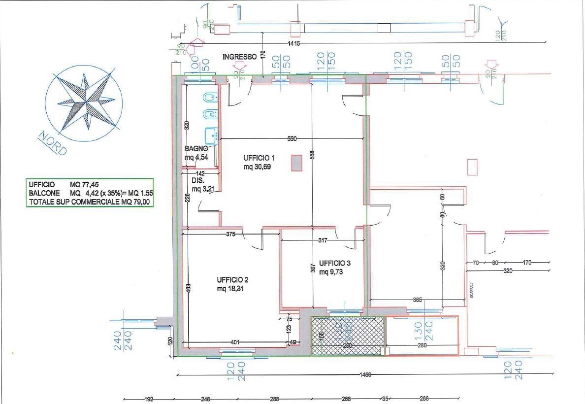
Le mille e una casa propone in vendita uno spazio a uso ufficio nel cuore di colico, a 150 metri dal lago, in un contesto professionale e recente, ideale per studi medici, sanitari, tecnici o liberi professionisti, situato in una zona vivace e altamente servita.l'immobile si trova al piano primo di uno stabile di recente costruzione dotato di ascensore, all'interno di un edificio che già ospita: • una farmacia, • fisioterapisti, • studi medici associati, • altri uffici professionali.una posizione davvero strategica che offre massima visibilità, comodità e accessibilità sia per i clienti che per gli operatori.l'ufficio ha una superficie commerciale di 80 mq ed è composto da uno spazio interno ben distribuito e molto luminoso, oltre a un balcone di 4 mq. Gli ambienti sono facilmente personalizzabili e divisibili per adattarsi a molteplici esigenze operative.dotato di impianto di riscaldamento autonomo a metano, spese condominiali contenute e prestazioni energetiche moderne, rappresenta un'opportunità unica anche in ottica di investimento.acquisto con intestazione a soggetto iva, con possibilità di reverse charge.prezzo di vendita: eu. 180.000 + iva 22%un'occasione ideale per chi cerca uno spazio professionale in un contesto elegante, servito e centralissimo. Colico è una delle località più dinamiche dell'alto lago di como, ben collegata e apprezzata per la qualità della vita, la vicinanza alla natura e la presenza di numerosi servizi, attività e uffici. classe energetica: g




Caratteristiche immobile:
Codice inserzione: 1750995090
Rif. Annuncio: 2001-3015
Provincia: Lecco
Comune: Colico
Superficie (Mq) : 77 Mq.
Tipo immobile: Negozi uffici capannoni
Piano: 1
Bagni: 1
Terrazze: 1

Costi:
Prezzo € 180.000


Efficienza energetica:
Classe energetica: G