home page > Annunci immobiliari in Italia > Lombardia > Mantova > San Benedetto Po > Negozi uffici capannoni in vendita > Scheda immobile

Negozi uffici capannoni in vendita a San Benedetto Po

COMPILA IL MODULO SOTTOSTANTE PER RICEVERE MAGGIORI INFORMAZIONI







Invia la richiesta ad altre agenzie
Accetto il trattamento dei miei dati



Quimmo agency

Via galileo galilei 6
48018 Faenza (RA)

0299944698

San Benedetto Po
Prezzo: € 990.000
3
7577



Descrizione:
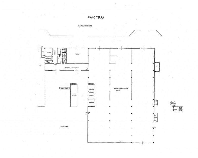
Proponiamo in vendita un ampio complesso immobiliare a destinazione commerciale/produttiva, situato nel comune di san benedetto po, al margine nord del paese, all'interno dell'area industriale. L'accesso principale avviene da via dell'artigianato, collegata direttamente alla strada statale 413, importante asse viario di connessione con modena.il compendio si estende su un'area complessiva di circa 41.344 mq, con una superficie scoperta di circa 33.965 mq, ed è costituito da più fabbricati realizzati in epoche differenti, attualmente dismessi (dal 2014) e precedentemente destinati alla produzione industriale.il primo edificio, disposto su due livelli, ospita al piano terra uffici e showroom (circa 524 mq) e al primo piano due unità abitative (circa 176 mq oltre balcone). Segue un ampio fabbricato monopiano di circa 1.741 mq, ad uso magazzino. Un ulteriore corpo di fabbrica comprende uffici al piano terra (circa 277 mq) con soppalco allo stato grezzo (277 mq), oltre a tettoia per ricovero macchinari (227 mq) e tunnel di collegamento (223 mq). Completa il complesso un grande edificio produttivo di circa 4.324 mq, dotato di vie di corsa per carroponte, con annessi locali tecnici e di servizio.l'area esterna, in parte asfaltata e in parte in battuto di cemento, è attrezzata con manufatti accessori tra cui cabina elettrica e strutture di servizio, ed è delimitata da recinzione con accessi carrabili.dal punto di vista urbanistico, l'area è classificata come 'ambiti prevalentemente produttivi' e presenta una capacità edificatoria residua di circa 17.427 mq di superficie coperta, elemento che offre interessanti prospettive di sviluppo e valorizzazione.grazie alle ampie superfici, alla configurazione degli edifici e alla posizione strategica, il complesso rappresenta un'interessante opportunità per attività produttive, logistiche, commerciali o per operazioni di riqualificazione e sviluppo immobiliare.




Caratteristiche immobile:
Codice inserzione: 1774238063
Rif. Annuncio: 2638864
Provincia: Mantova
Comune: San Benedetto Po
Superficie (Mq) : 7577 Mq.
Tipo immobile: Negozi uffici capannoni
Anno costruzione/ristrutturazione: 1978
Bagni: 3

Costi:
Prezzo € 990.000


Efficienza energetica: