home page > Annunci immobiliari in Italia > Lombardia > Milano > Bresso > Negozi uffici capannoni in vendita > Scheda immobile

Negozi uffici capannoni in vendita a Bresso

COMPILA IL MODULO SOTTOSTANTE PER RICEVERE MAGGIORI INFORMAZIONI







Invia la richiesta ad altre agenzie
Accetto il trattamento dei miei dati



Rt agency immobili per l'impresa

Viale gian galeazzo 16
20121 Milano

02.48.910.070    Riferimenti: Roberto Terni

Bresso
Prezzo: € 395.000
G
2
410
99



Descrizione:
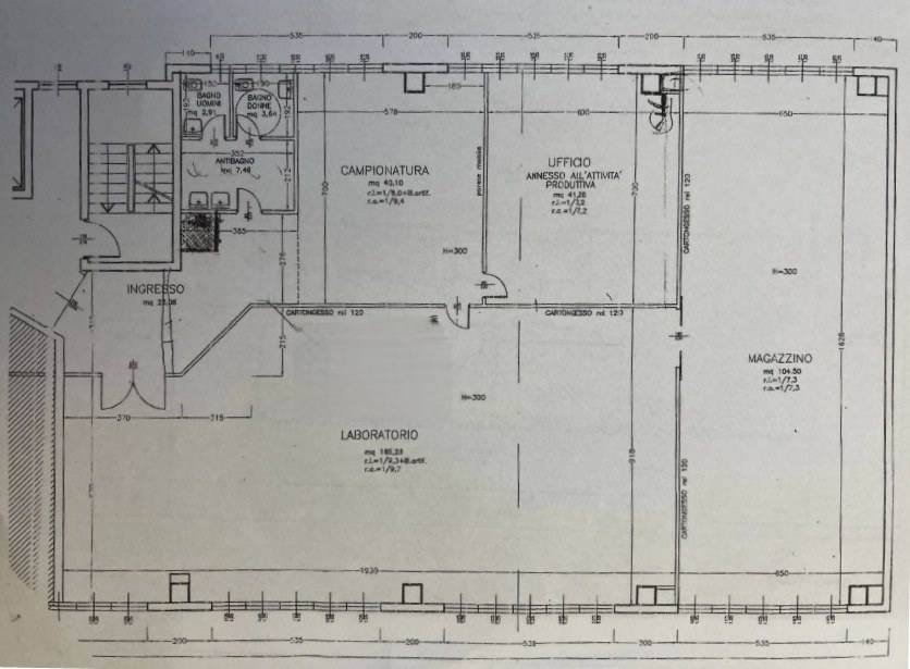
Cormano (mi) confine bresso - autostrada a4. Facilmente raggiungibile dalle principali arterie stradali della zona.porzione di immobile artigianale con uffici e showroom mq. 400 ca. piano primo con montacarichi - accesso diretto dal cortile. l'immobile presenta spazi ampi, funzionali e ben distribuiti, ideali per attività commerciali e direzionali, produzione / stoccaggio / grande distribuzione. Completo di impianti certificati, classe energetica: g (eph 65,29 kwh/ma).ristrutturato nel 2022.comodi spazi esterni di manovra e disponibilità di parcheggio (5 posti auto interni assegnati). Accesso comodo anche per mezzi pesanti.possibilità di personalizzazione secondo esigenze. maggiori informazioni su richiestala posizione sulla mappa è indicativa. I dati inseriti nel presente annuncio non costituiscono elemento contrattuale. Le foto pubblicate potrebbero non corrispondere tutte all'immobile specifico, alcune immagini di repertorio sono state inserite solo a scopo illustrativo. Tutti i documenti ufficiali sono visionabili su richiesta.rt agency - immobili per l'impresa è un'agenzia specializzata nel settore commerciale. I servizi offerti sono rivolti principalmente al mondo dell'imprenditoria, con professionisti dedicati totalmente a questo segmento di mercato. fornisce consulenza nella compravendita e locazione di immobili industriali, terziari, piattaforme logistiche e spazi commerciali di media e grande struttura. rt agency immobili per l'impresa è in grado di offrire, sia al proprietario che all'utilizzatore, tutti i servizi necessari alla commercializzazione dei propri immobili o alla ricerca di una nuova sede. classe energetica: g epi: 65 kwh/m3 anno




Caratteristiche immobile:
Codice inserzione: 1772595190
Rif. Annuncio: 6114UF53936-BIS
Provincia: Milano
Comune: Bresso
Superficie (Mq) : 410 Mq.
Tipo immobile: Negozi uffici capannoni
Stato immobile: usato
Piano: Ultimo piano
Bagni: 2

Costi:
Prezzo € 395.000


Efficienza energetica:
Classe energetica: G
Indice di prestazione energetica (EPgl): 65 kWh/mc annui
Riscaldamento: autonomo