home page > Annunci immobiliari in Italia > Lombardia > Milano > Parabiago > Case e ville indipendenti in vendita > Scheda immobile

Case e ville indipendenti in vendita a Parabiago

COMPILA IL MODULO SOTTOSTANTE PER RICEVERE MAGGIORI INFORMAZIONI







Invia la richiesta ad altre agenzie
Accetto il trattamento dei miei dati



Re/max class 2

Corso sempione, 108
20025 Legnano (MI)

0247927084

Parabiago
Prezzo: € 499.000
3
3
250



Descrizione:
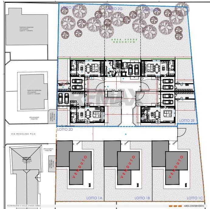
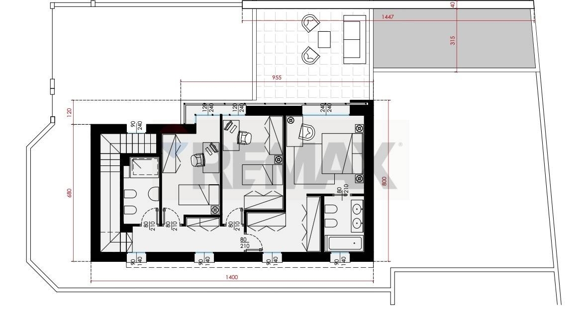
Proponiamo una elegante e moderna villa unifamiliare a parabiago, situata in un complesso residenziale con 8 ville singole.-l'immobile, disposto su due livelli, ed è dotato di ogni comfort per garantire il massimo benessere.-al piano terra ingresso sulla zona living dove si trovano il luminoso soggiorno con cucina a vista, il disimpegno e il bagno, dalla sala si accede attraverso una grande vetrata al giardino;-al primo piano a cui si accede tramite una comoda scala, si trova la zona notte con una camera singola, una camera matrimoniale, un bagno e la grande camera padronale con cabina armadio e bagno en suite.-gli ambienti sono resi ancora più accoglienti grazie all'impianto di riscaldamento a pavimento che permette di mantenere una temperatura ideale in ogni stagione.-la costruzione ha finiture di pregio e infissi in pvc con tripla camera, che garantiscono un'ottima coibentazione termica e acustica, è possibile personalizzare le finiture con scelta all'interno di un ampio capitolato.-dalla zona giorno si accede alla grande cantina a piano terra che comunica direttemento con il box doppio in larghezza-le dotazioni della villa comprendono : pannelli solari per la produzione di energia elettrica, batteria di accumulo, tapparelle rinforzate e motorizzate, impianto domotico di base con possibilità di sviluppo successivo, climatizzazione nella zona giorno e nelle tre camere, predisposizione antifurto.classe energetica prevista alla consegna a4consegna prevista marzo 2027? fidejussione che garantisce il rimborso, in caso di crisi dell'impresa, di tutte le somme pagate o da pagare prima del trasferimento definitivo della proprietà;? polizza assicurativa di durata decennale (cd. Decennale postuma) che garantisce il risarcimento dei danni materiali e diretti all'immobile;? la legge (d.lgs n.14/2019) prevede l'obbligo di stipulare il contratto preliminare con l'intervento del notaio.le immagini degli ambienti sono puramente esemplificative e non costituisconno vincolo contrattuale.riferimento rib 342 villa dnon esitare a contattarci per avere maggiori informazioni su questo o su altri immobili gestiti dal gruppo re/max!devi vendere un immobile? contattaci! facciamo parte del network immobiliare n. 1 al mondo e con le nostre agenzie e i nostri consulenti affiliati siamo in grado di valorizzare al massimo il tuo immobile, seguendoti con professionalità ed impegno fino alla vendita alle migliori condizioni e con le tempistiche più adatte alle tue esigenze




Caratteristiche immobile:
Codice inserzione: 1773293804
Rif. Annuncio: 32211031-342
Provincia: Milano
Comune: Parabiago
Superficie (Mq) : 250 Mq.
Tipo immobile: Case e ville indipendenti
Anno costruzione/ristrutturazione: 2026
Camere: 3
Stato al rogito: Libero
Garage: Doppio
Tipologia giardino : Privato
Bagni: 3

Costi:
Prezzo € 499.000


Efficienza energetica:
Riscaldamento: autonomo