Descrizione:
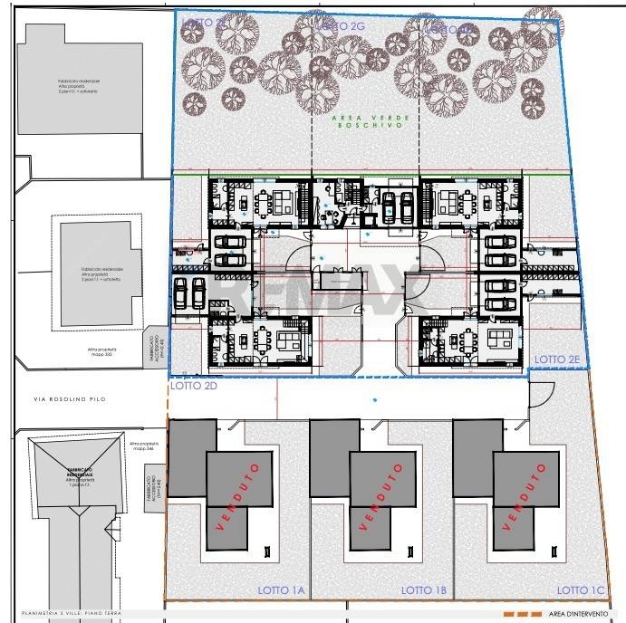
Proponiamo una elegante e moderna villa unifamiliare a parabiago, situata in un complesso residenziale con 8 ville singole.-l'immobile, disposto su due livelli, ed è dotato di ogni comfort per garantire il massimo benessere.-dal box doppio in larghezza, con locale lavanderia si accede ai piani abitativi e al salottino, con bagno, del piano rialzato tramite ascensore interno.-al piano primo si trova zona living dove si trovano il luminoso e ampio soggiorno con cucina separata, il disimpegno e il bagno;-al secondo piano, a cui si accede tramite una comoda scala o tramite l'ascensore interno, si trova la zona notte con due camere singole, un bagno e la grande camera padronale e bagno en suite.-gli ambienti sono resi ancora più accoglienti grazie all'impianto di riscaldamento a pavimento che permette di mantenere una temperatura ideale in ogni stagione.-la costruzione ha finiture di pregio e infissi in pvc con tripla camera, che garantiscono un'ottima coibentazione termica e acustica, è possibile personalizzare le finiture con scelta all'interno di un ampio capitolato.-le dotazioni della villa comprendono : pannelli solari per la produzione di energia elettrica, batteria di accumulo, tapparelle rinforzate e motorizzate, impianto domotico di base con possibilità di sviluppo successivo, climatizzazione nella zona giorno e nelle tre camere, predisposizione antifurto.le immagini degli ambienti sono puramente esemplificative e non costituisconno vincolo contrattuale.classe energetica prevista alla consegna a4consegna prevista marzo 2027? fidejussione che garantisce il rimborso, in caso di crisi dell'impresa, di tutte le somme pagate o da pagare prima del trasferimento definitivo della proprietà;? polizza assicurativa di durata decennale (cd. Decennale postuma) che garantisce il risarcimento dei danni materiali e diretti all'immobile;? la legge (d.lgs n.14/2019) prevede l'obbligo di stipulare il contratto preliminare con l'intervento del notaio.riferimento rib 345 villa fnon esitare a contattarci per avere maggiori informazioni su questo o su altri immobili gestiti dal gruppo re/max!devi vendere un immobile? contattaci! facciamo parte del network immobiliare n. 1 al mondo e con le nostre agenzie e i nostri consulenti affiliati siamo in grado di valorizzare al massimo il tuo immobile, seguendoti con professionalità ed impegno fino alla vendita alle migliori condizioni e con le tempistiche più adatte alle tue esigenze