home page > Annunci immobiliari in Italia > Lombardia > Milano > Peschiera Borromeo > Negozi uffici capannoni in affitto > Scheda immobile

Negozi uffici capannoni in affitto a Peschiera Borromeo

COMPILA IL MODULO SOTTOSTANTE PER RICEVERE MAGGIORI INFORMAZIONI







Invia la richiesta ad altre agenzie
Accetto il trattamento dei miei dati



Immobili servizi immobiliari s.a.s.

Via stradivari 7
20121 Milano

0229523119    Riferimenti: Giancarlo Giraldi

Peschiera Borromeo
Prezzo: info in agenzia
G
3
1200
4



Descrizione:
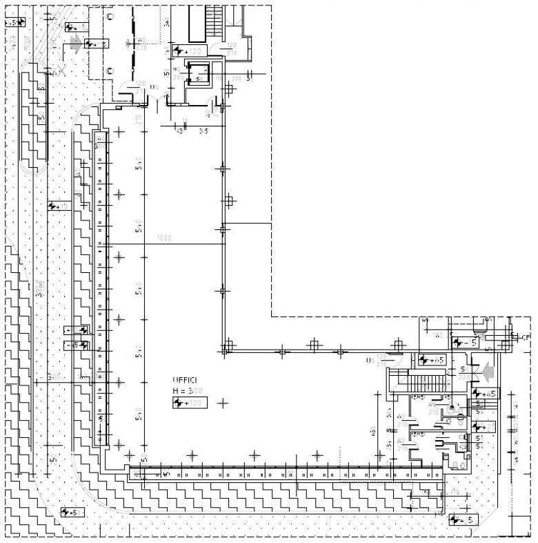
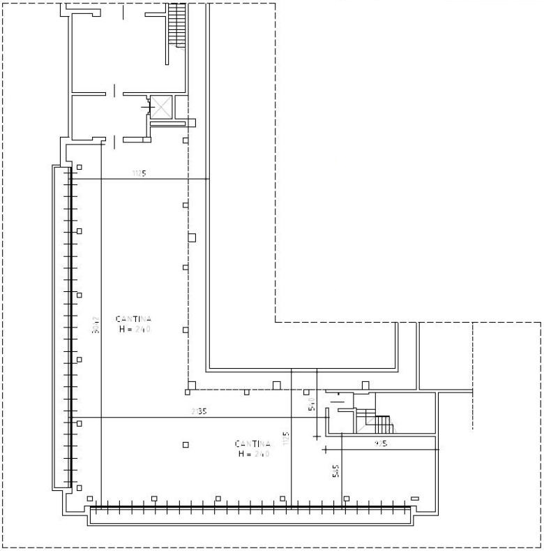
Affitta a peschiera borromeo, ufficio in centro direzionale, mq. 1.200 ca. Cl. Energetica: g - trattativa riservata. Riscaldamento e impianto di climatizzazione centralizzati, l'immobile e' in ordine, gia' libero. Immobile di grande immagine con uffici di mq 600 ca. Posti al piano terra in porzione indipendente e mq 600 ca di deposito/cantina al piano seminterrato, dotati di riscaldamento e condizionamento, pavimenti galleggianti, liberi subito. rif.: ul3155




Caratteristiche immobile:
Codice inserzione: 1772595263
Rif. Annuncio: UL3155
Provincia: Milano
Comune: Peschiera Borromeo
Superficie (Mq) : 1200 Mq.
Tipo immobile: Negozi uffici capannoni
Stato immobile: usato
Anno costruzione/ristrutturazione: 2026
Piano: 4
Bagni: 3

Costi:
Prezzo info in agenzia


Efficienza energetica:
Classe energetica: G
Indice di prestazione energetica (EPgl): 150 kWh/mc annui
Riscaldamento: centralizzato