Descrizione:
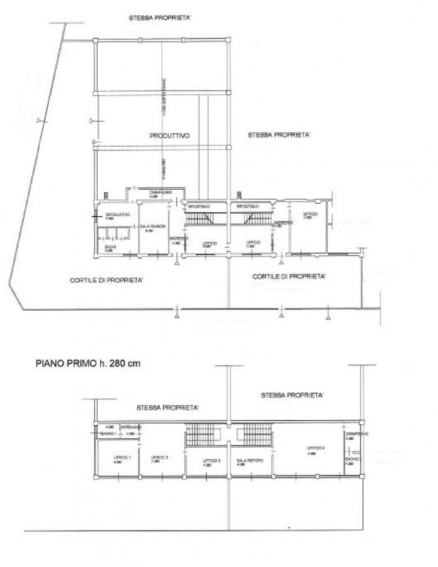
Affitta a san giuliano milanese, magazzino, mq. 670 ca. Cl. Energetica: g - kwh/mc anno: 150 canone annuo euro. 55.000,00 ( pari a ca. 4.583,00 euro al mese). Riscaldamento e condizionamento autonomi freddo/caldo negli uffici e solo impianto di riscaldamento nel magazzino. L'immobile e' in ordine, gia' libero. Immobile su due piani composto da mq 270 ca ad uso capannone al piano terra e mq 150 ca ad uso uffici , al 1 piano mq 180 ca ad uso uffici.cortile carraio di mq 450 ca (calcolati al 15% ai fini commerciali). rif.: ml818