home page > Annunci immobiliari in Italia > Lombardia > Milano > Santo Stefano Ticino > Case e ville indipendenti in vendita > Scheda immobile

Case e ville indipendenti in vendita a Santo Stefano Ticino

COMPILA IL MODULO SOTTOSTANTE PER RICEVERE MAGGIORI INFORMAZIONI







Invia la richiesta ad altre agenzie
Accetto il trattamento dei miei dati



Le-ca.se. Sas

Via simone da corbetta,76
20011 Corbetta (MI)

0297271920

Santo Stefano Ticino
Prezzo: € 199.000
A4
70



Descrizione:
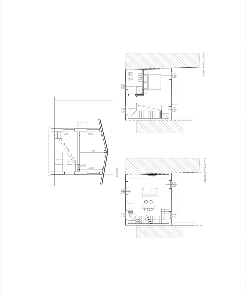
In prossima realizzazione, con avvio lavori a breve e consegna prevista fine 2026; possibilità di prenotare bilocale su due livelli di circa 70 mq commerciali, con giardino privato di 110 mq.l'immobile sarà di nuova e completa ristrutturazione, in classe energetica a4, garanzia di elevatissime prestazioni in termini di efficienza e ridotti consumi energetici.prevista installazione di impianto fotovoltaico, pompa di calore e serramenti di ultima generazione.progetto attualmente non definitivo, con possibilità di personalizzazione degli spazi e delle finiture.posto auto nelle immediate vicinanze compreso nel prezzo.le immagini e i render sono puramente indicativi e non rappresentano fedelmente lo stato finale dell'immobile. Non costituiscono elemento contrattuale.maggiori informazioni e dettagli disponibili presso il nostro ufficio rif annuncio 4238




Caratteristiche immobile:
Codice inserzione: 1768453325
Rif. Annuncio: 4238
Provincia: Milano
Comune: Santo Stefano Ticino
Superficie (Mq) : 70 Mq.
Tipo immobile: Case e ville indipendenti

Costi:
Prezzo € 199.000
Spese condominiali: € 0


Efficienza energetica:
Classe energetica: A4