home page > Annunci immobiliari in Italia > Lombardia > Milano > Sesto San Giovanni > appartamenti in vendita > Scheda immobile

Appartamento in vendita a Sesto San Giovanni

COMPILA IL MODULO SOTTOSTANTE PER RICEVERE MAGGIORI INFORMAZIONI







Invia la richiesta ad altre agenzie
Accetto il trattamento dei miei dati



L'abbruzzi gruppo immobiliare srl

Via domenic
20099 Sesto San Giovanni (MI)

0226265020

Sesto San Giovanni
Prezzo: € 209.000
2
1
75



Descrizione:
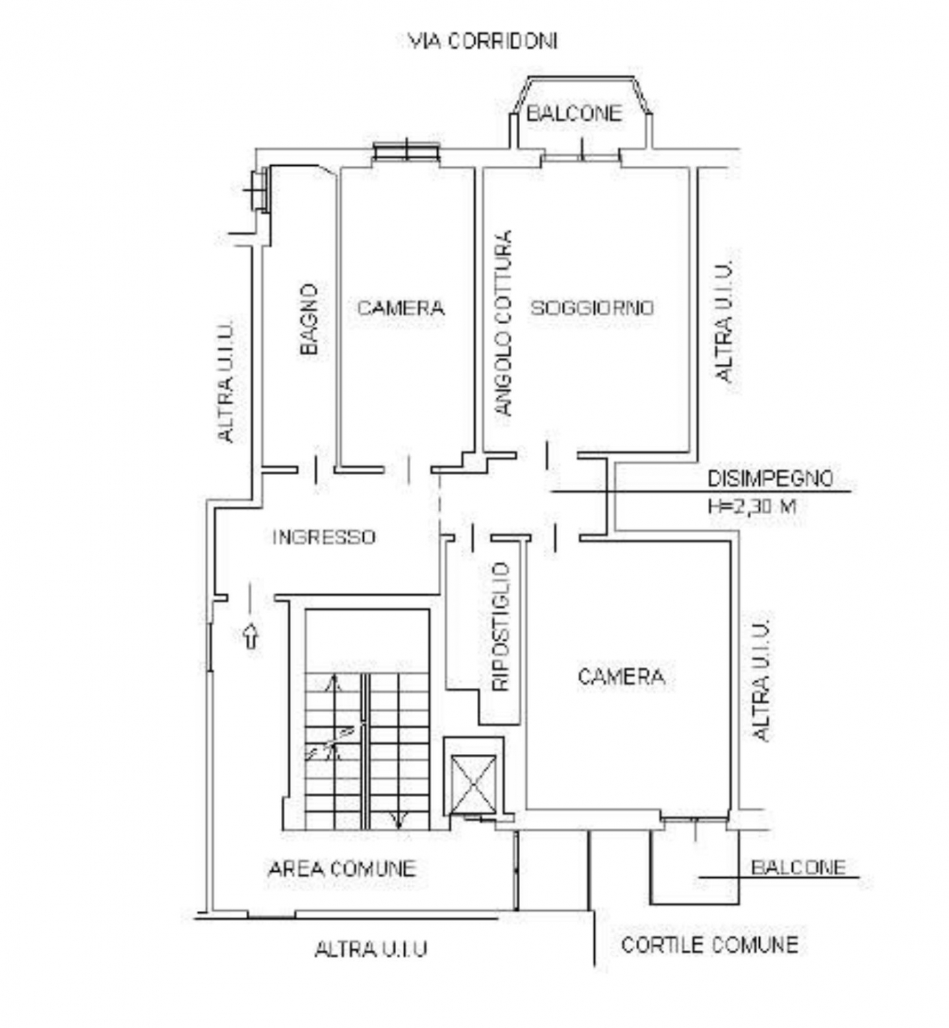
Rif: 3/373 l'abbruzzi gruppo immobiliare propone in sesto san giovanni, vicinane della metropolitana rondo' appartamento luminoso con vista panoramica situato all'ultimo piano composto da ampio ingresso, soggiorno con angolo cottura con affaccio sul balcone, ripostiglio, due camere da letto di cui una con affaccio sul balcone, servizio e cantina. Libero subito. ? 209.000, 00la zona e' fornita di scuole primarie, supermercati, parchi, mercati rionali e centri sportivi.l'abbruzzi gruppo immobiliare dialessandro l'abbruzzivia fiorani, 119 sesto s. Giovanni (mi)tel fax sc8347957




Caratteristiche immobile:
Codice inserzione: 1763086853
Rif. Annuncio: 3/373
Provincia: Milano
Comune: Sesto San Giovanni
Superficie (Mq) : 75 Mq.
Tipo immobile: Appartamento
Anno costruzione/ristrutturazione: 1960
Camere: 2
Bagni: 1

Costi:
Prezzo € 209.000


Efficienza energetica:
Indice di prestazione energetica (EPgl): 205.792 kWh/mq annui