home page > Annunci immobiliari in Italia > Lombardia > Milano > Settala > Negozi uffici capannoni in affitto > Scheda immobile

Negozi uffici capannoni in affitto a Settala

COMPILA IL MODULO SOTTOSTANTE PER RICEVERE MAGGIORI INFORMAZIONI







Invia la richiesta ad altre agenzie
Accetto il trattamento dei miei dati



Immobili servizi immobiliari s.a.s.

Via stradivari 7
20121 Milano

0229523119    Riferimenti: Giancarlo Giraldi

Settala
Prezzo: info in agenzia
G
3
4090
98



Descrizione:
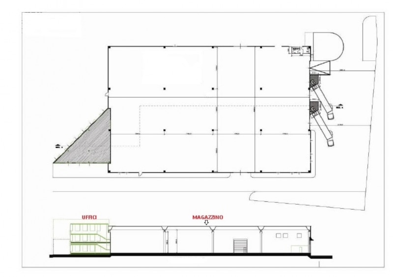
Affitta a settala, caleppio, capannone con uffici, mq. 4.090 ca., - cl. Energetica: g - kwh/mc anno: 150. Capannone industriale inserito in business park interamente recintato con servizio di sorveglianza 24h. L'immobile e' cosi suddiviso: mq 3.400 ca. Ad uso capannone e mq 690 ca suddivisi su tre piani (mq 230 ca l'uno) ad uso uffici. Capannone con 5 baie di carico dotate di pedane elettroidrauliche. La zona uffici e' cosi' composta: pavimento sopraelevato, controsoffitto in fibra, impianto di riscaldamento/raffrescamento e pareti divisorie in cartongesso. Sono presenti 36 parcheggi riservati. Possibilita' di abbinare altri lotti adiacenti. Le foto potrebbero non corrispondere all'immobile specifico, ma servono a dare un'idea di come sono gli spazi internamente avendo finiture simili. Rif.: zl1281




Caratteristiche immobile:
Codice inserzione: 1757990030
Rif. Annuncio: ZL1281
Provincia: Milano
Comune: Settala
Superficie (Mq) : 4090 Mq.
Tipo immobile: Negozi uffici capannoni
Stato immobile: usato
Anno costruzione/ristrutturazione: 2020
Piano: Piano terra
Bagni: 3

Costi:
Prezzo info in agenzia


Efficienza energetica:
Classe energetica: G
Indice di prestazione energetica (EPgl): 150 kWh/mc annui
Riscaldamento: autonomo