home page > Annunci immobiliari in Italia > Lombardia > Milano > Settimo Milanese > Negozi uffici capannoni in vendita > Scheda immobile

Negozi uffici capannoni in vendita a Settimo Milanese

COMPILA IL MODULO SOTTOSTANTE PER RICEVERE MAGGIORI INFORMAZIONI







Invia la richiesta ad altre agenzie
Accetto il trattamento dei miei dati



Quimmo agency

Via galileo galilei 6
48018 Faenza (RA)

0299944698

Settimo Milanese
Prezzo: info in agenzia
C
7500
1



Descrizione:
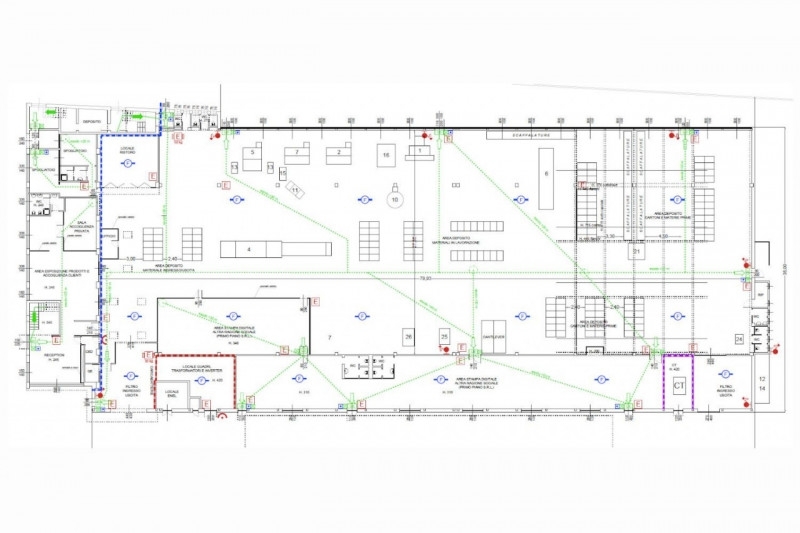
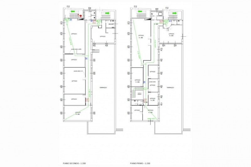
A settimo milanese, in posizione strategica alle porte di milano e a brevissima distanza dalla tangenziale ovest a50, proponiamo in vendita in via iv novembre un'interessante proprietà composta da capannone produttivo, palazzina uffici e un ampio piazzale all'interno di un un contesto dinamico e in evoluzione, in un contesto misto produttivo e residenziale, valorizzato anche dalla presenza di un parco di recente realizzazione nelle immediate vicinanze.l'immobile si presenta in buone condizioni ed è attualmente utilizzato, offrendo un ampio accesso carrabile e generosi spazi di manovra che rendono la logistica particolarmente agevole. Il lotto si sviluppa su una vasta area esterna di circa 7.500mq, all'interno della quale troviamo un capannone di circa 2.766 mq con altezza di 4,20 metri, una palazzina uffici distribuita su tre livelli per un totale di circa 950 mq e un'area pertinenziale esterna di 4.495 mq. Vi è infine una capacità edificatoria residua di circa 1.300 mq.dal punto di vista impiantistico, la proprietà è dotata di impianto elettrico a norma, cabina enel interna e cabina di trasformazione, oltre a un impianto fotovoltaico da 100 kwh sulla copertura del fabbricatoil vero elemento distintivo di questa proposta è rappresentato dal fatto che l'intera area può essere oggetto di cambio di destinazione d'uso a residenziale, aprendo scenari di sviluppo estremamente interessanti. L'immobile si presta non solo a un utilizzo produttivo immediato, ma soprattutto a operazioni di valorizzazione immobiliare in una zona come settimo milanese, sempre più richiesta per la sua vicinanza a milano e la qualità del contesto urbano.




Caratteristiche immobile:
Codice inserzione: 1775184187
Rif. Annuncio: 2638989
Provincia: Milano
Comune: Settimo Milanese
Superficie (Mq) : 7500 Mq.
Tipo immobile: Negozi uffici capannoni
Stato immobile: usato
Posti auto scoperti: 1 posto auto

Costi:
Prezzo info in agenzia


Efficienza energetica:
Classe energetica: C
Riscaldamento: autonomo