home page > Annunci immobiliari in Italia > Lombardia > Monza e della Brianza > Bernareggio > appartamenti in vendita > Scheda immobile

Appartamento in vendita a Bernareggio

COMPILA IL MODULO SOTTOSTANTE PER RICEVERE MAGGIORI INFORMAZIONI







Invia la richiesta ad altre agenzie
Accetto il trattamento dei miei dati



Immobiliare santalfredo

Via remo brambilla 7
20863 Concorezzo (MB)

0396908137    0396908771    Riferimenti: IMMOBILIARE SANTALFREDO

Bernareggio
Prezzo: € 339.000
B
3
2
180
Piano terra



Descrizione:
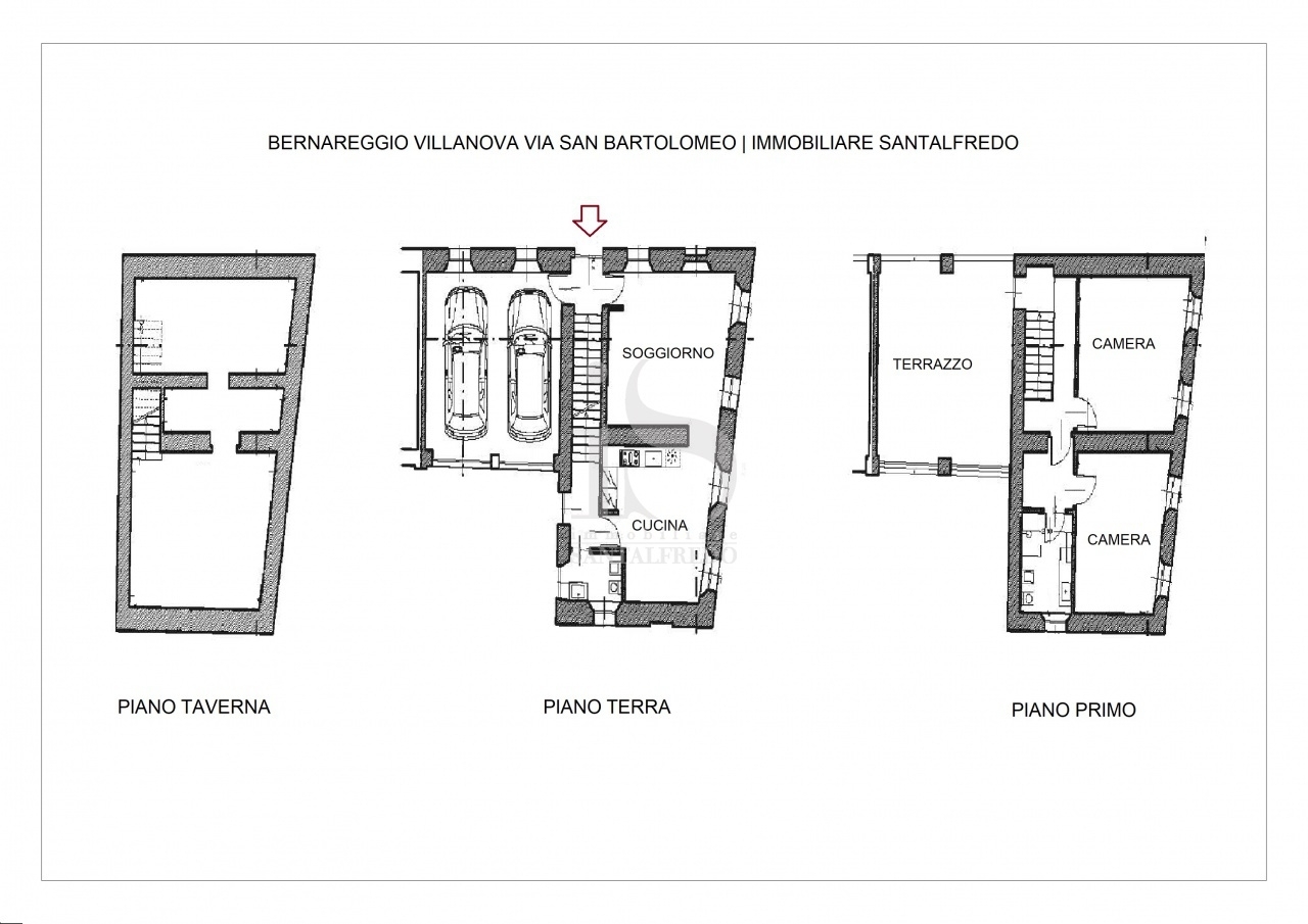
Bernareggio - villanova | abitazione ristrutturata con terrazzo coperto, taverna con volte originali e box doppio. Nel cuore di villanova di bernareggio, proponiamo in vendita un'abitazione terra-cielo con ingresso indipendente e terrazzo riservato, oggetto di una completa ristrutturazione nel 2023 che ha integrato recupero architettonico e innovazione impiantistica. Una soluzione pensata per chi cerca spazi concreti, autonomia gestionale e assenza di spese condominiali. La ristrutturazione ha mantenuto gli elementi identitari dell'edificio, valorizzando i materiali originari e intervenendo con soluzioni contemporanee coerenti con il contesto. La distribuzione interna è stata ripensata per migliorare funzionalità e fruibilità degli spazi. Gli interni l'immobile si sviluppa su più livelli per circa 180 mq. Al piano terra l'ingresso introduce in un soggiorno ampio e ben organizzato, affiancato da una cucina abitabile posizionata sul fronte principale. Il bagno di servizio completa il livello. La scala su misura, integrata architettonicamente e dotata di illuminazione segna passo incassata, conduce alla zona notte. Il piano superiore ospita due camere da letto e un bagno, oltre a un terrazzo coperto di 30 mq: uno spazio realmente utilizzabile, protetto e riservato, che amplia la superficie vivibile della casa in ogni stagione. La taverna, collegata internamente, rappresenta uno degli elementi più distintivi: soffitti a volta in mattone a vista, autentici e restaurati, conferiscono valore storico e carattere all'ambiente, rendendolo adatto a zona conviviale, studio, spa o spazio multifunzionale. Il collegamento diretto con l'autorimessa doppia di 30 mq rappresenta un elemento operativo concreto: ingresso in casa senza passaggi esterni, aspetto sempre più rilevante in termini di comfort quotidiano e sicurezza. L'esposizione su tre lati (sud - est -ovest) garantisce luminosità distribuita durante l'intera giornata e favorisce una ventilazione naturale efficace. Dal punto di vista tecnico, l'immobile presenta: . Tetto rifatto e predisposto per installazione di pannelli solari . Cappotto termico . Serramenti di ultima generazione . Predisposizione impianto di climatizzazione . Predisposizione sistema di allarme . Grate in ferro battuto. Intervento recente, impiantistica aggiornata e integrazione tra struttura storica e comfort contemporaneo rendono questa soluzione particolarmente interessante per chi ricerca indipendenza, qualità costruttiva e spazi esterni fruibili. La classe energetica è b (epgl 52,29 kwh/m anno). L'assenza di spese condominiali incide in modo diretto sulla sostenibilità della gestione. Categoria catastale a/2. Immobiliare santalfredo telefono o whatsapp sc9613338




Caratteristiche immobile:
Codice inserzione: 1773022833
Rif. Annuncio: HOME 3681
Provincia: Monza e della Brianza
Comune: Bernareggio
Superficie (Mq) : 180 Mq.
Tipo immobile: Appartamento
Piano: Piano terra
Camere: 3
Garage: Doppio
Bagni: 2
Terrazze: 1

Costi:
Prezzo € 339.000


Efficienza energetica:
Classe energetica: B
Indice di prestazione energetica (EPgl): 52.292 kWh/mq annui
Riscaldamento: autonomo