home page > Annunci immobiliari in Italia > Lombardia > Monza e della Brianza > Carnate > Terreni in vendita > Scheda immobile

Terreni in vendita a Carnate

COMPILA IL MODULO SOTTOSTANTE PER RICEVERE MAGGIORI INFORMAZIONI







Invia la richiesta ad altre agenzie
Accetto il trattamento dei miei dati



Ca real estate di carloalberto giraldi

Via napoli 49
20060 Cassina de' Pecchi (MI)

0286882600    Riferimenti: CARLOALBERTO GIRALDI

Carnate
Prezzo: info in agenzia
18100
Piano terra



Descrizione:
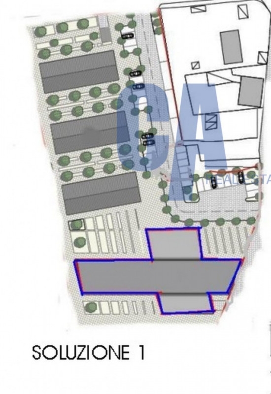
Vende a carnate, terreno edificabile, mq. 18.100 ca. Trattativa riservata terreno di mq 18.100 ca. Su cui e' possibile costruire una slp pari a mq 4.000 ca. Ad uso alberghiero o residenza per anziani autosufficienti come da ipotesi a oppure costruire per una slp pari a mq 3.600 ca. Come da ipotesi b. Altezza massima mt. 12. Vicinanze immediate alla stazione ferroviaria linea milano-lecco . L'ipotesi di vendita e' l'edificio a evidenziato in blu. Immobili non soggetto all'obbligo di certificazione energetica. Tvca020 - altre migliaia di annunci sul nostro sito ca-re.it




Caratteristiche immobile:
Codice inserzione: 1775443297
Rif. Annuncio: TVCA020
Provincia: Monza e della Brianza
Comune: Carnate
Superficie (Mq) : 18100 Mq.
Tipo immobile: Terreni
Stato immobile: usato
Anno costruzione/ristrutturazione: 2026
Piano: Piano terra

Costi:
Prezzo info in agenzia


Efficienza energetica:
Classe energetica: Immobile non soggetto all'obbligo di certificazione