home page > Annunci immobiliari in Italia > Lombardia > Monza e della Brianza > Cesano Maderno > appartamenti in vendita > Scheda immobile

Appartamento in vendita a Cesano Maderno

COMPILA IL MODULO SOTTOSTANTE PER RICEVERE MAGGIORI INFORMAZIONI







Invia la richiesta ad altre agenzie
Accetto il trattamento dei miei dati



Immobiliare borromeo

Via borromeo , 16
20811 Cesano Maderno (MB)

0362509099    3440963021    Riferimenti: IMMOBILIARE BORROMEO

Cesano Maderno
Prezzo: € 310.000
2
115



Descrizione:
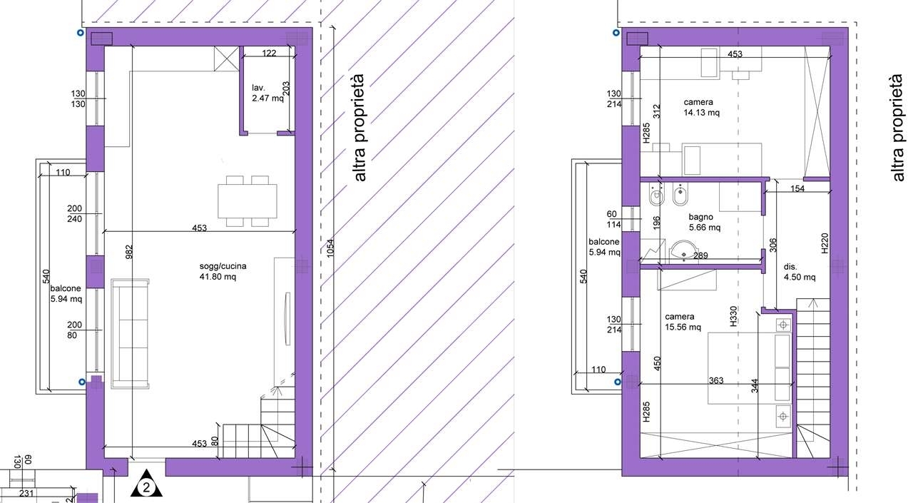
Nel cuore di cesano maderno, a pochi passi dalla stazione ferroviaria e in una posizione comoda per raggiungere tutti i principali servizi, nasce una nuova residenza di sole cinque unità, attualmente in fase di ultimazione. In questo contesto moderno ed esclusivo proponiamo un appartamento duplex situato al primo piano senza ascensore, caratterizzato da ambienti luminosi, spazi ben distribuiti e due comodi balconi.l'immobile si sviluppa su due livelli e offre una metratura generosa, ideale per chi cerca comfort e una zona giorno ampia e accogliente. l'ingresso si apre su una splendida zona giorno di oltre 40 mq, un ambiente unico e accogliente che integra soggiorno e cucina in un grande spazio conviviale, arricchito da un balcone vivibile e da un pratico bagno di servizio. Il piano superiore ospita la zona notte, impreziosita dal soffitto in legno a vista, composta da due camere di dimensioni importanti, un bagno finestrato e un secondo balcone.la residenza è progettata secondo i più moderni criteri di efficienza energetica, con classe a4, riscaldamento autonomo a pavimento alimentato da pompa di calore, infissi in pvc con vetro basso emissivo e tapparelle motorizzate. Sono presenti: porta blindata, predisposizione per aria condizionata e impianto d'allarme, oltre a finiture di qualità che valorizzano ogni ambiente.completano la proposta i box disponibili a partire da € 25.000.classe energetica:




Caratteristiche immobile:
Codice inserzione: 1773879224
Rif. Annuncio: 310.App2.CV
Provincia: Monza e della Brianza
Comune: Cesano Maderno
Superficie (Mq) : 115 Mq.
Tipo immobile: Appartamento
Camere: 2

Costi:
Prezzo € 310.000


Efficienza energetica: