home page > Annunci immobiliari in Italia > Lombardia > Monza e della Brianza > Cesano Maderno > appartamenti in vendita > Scheda immobile

Appartamento in vendita a Cesano Maderno

COMPILA IL MODULO SOTTOSTANTE PER RICEVERE MAGGIORI INFORMAZIONI







Invia la richiesta ad altre agenzie
Accetto il trattamento dei miei dati



Immobiliare borromeo

Via borromeo , 16
20811 Cesano Maderno (MB)

0362509099    3440963021    Riferimenti: IMMOBILIARE BORROMEO

Cesano Maderno
Prezzo: € 225.000
2
90



Descrizione:
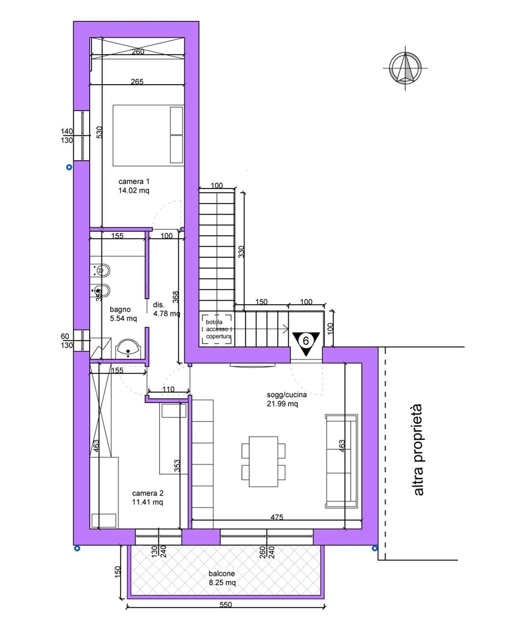
In una delle zone più comode di cesano maderno, dove stazione, servizi e centro città sono facilmente raggiungibili, sta sorgendo una nuova residenza di sole cinque unità, oggi in fase di ultimazione e progettata per offrire comfort moderno, qualità costruttiva e massima efficienza energetica. l'appartamento proposto si trova al secondo e ultimo piano senza ascensore e accoglie con un'atmosfera calda e contemporanea grazie al soffitto in legno e alle finiture di livello, che valorizzano ogni ambiente. La disposizione interna, prevede una luminosa zona giorno con angolo cottura, due camere da letto, un pratico disimpegno e un bagno finestrato. Il balcone di 9 mq rappresenta uno spazio esterno ideale per momenti di relax.la residenza è progettata in classe energetica a4, grazie a dotazioni tecniche di ultima generazione: riscaldamento autonomo a pavimento con pompa di calore, infissi in pvc a vetro basso emissivo, tapparelle motorizzate, porta blindata, oltre alla predisposizione per impianto d'allarme e aria condizionata.per completare la soluzione è disponibile un box a partire da € 25.000, ideale per chi desidera un'abitazione comoda e completa in ogni dettaglio.classe energetica:




Caratteristiche immobile:
Codice inserzione: 1773879225
Rif. Annuncio: 225.App6.CV
Provincia: Monza e della Brianza
Comune: Cesano Maderno
Superficie (Mq) : 90 Mq.
Tipo immobile: Appartamento
Camere: 2

Costi:
Prezzo € 225.000


Efficienza energetica: