home page > Annunci immobiliari in Italia > Lombardia > Monza e della Brianza > Concorezzo > Negozi uffici capannoni in vendita > Scheda immobile

Negozi uffici capannoni in vendita a Concorezzo

COMPILA IL MODULO SOTTOSTANTE PER RICEVERE MAGGIORI INFORMAZIONI







Invia la richiesta ad altre agenzie
Accetto il trattamento dei miei dati



Immobili servizi immobiliari s.a.s.

Via stradivari 7
20121 Milano

0229523119    Riferimenti: Giancarlo Giraldi

Concorezzo
Prezzo: € 290.000
G
3
290
1
1



Descrizione:
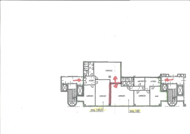
Vende a concorezzo, ufficio in centro direzionale, mq. 290 ca., 1 piano. prezzo euro. 290.000,00 riscaldamento e climatizzazione autonomi l'immobile e' in ordine, gia' libero. Trattasi di due uffici di mq. 145 ca. Nella scala a e mq. 145 ca. Nella scala b., comunicanti. L'ufficio e' dotato di 4 servizi + 2 docce. Immobile dotato di impianto d'allarme e videosorveglianza. ufficio e' cablato in cat6, illuminazione a led possibilita' di installare insegne sulla parte superiore dell'edificio, fronte tangenziale. Edificio dotato di due ascensori e due montacarichi. ottime condizioni, non necessita di lavori strutturali. compresi nel prezzo, 5 posti auto ad uso esclusivo. Situato in posizione strategica, in quanto in prossimita' di tangeziali ed autostrade. rif.: uv852 - cl. Energetica: g - kwh/mc anno: 150




Caratteristiche immobile:
Codice inserzione: 1758509024
Rif. Annuncio: UV852
Provincia: Monza e della Brianza
Comune: Concorezzo
Superficie (Mq) : 290 Mq.
Tipo immobile: Negozi uffici capannoni
Stato immobile: usato
Anno costruzione/ristrutturazione: 1996
Piano: 1
Posti auto scoperti: 1 posto auto
Bagni: 3

Costi:
Prezzo € 290.000


Efficienza energetica:
Classe energetica: G
Indice di prestazione energetica (EPgl): 150 kWh/mc annui
Riscaldamento: autonomo