Descrizione:
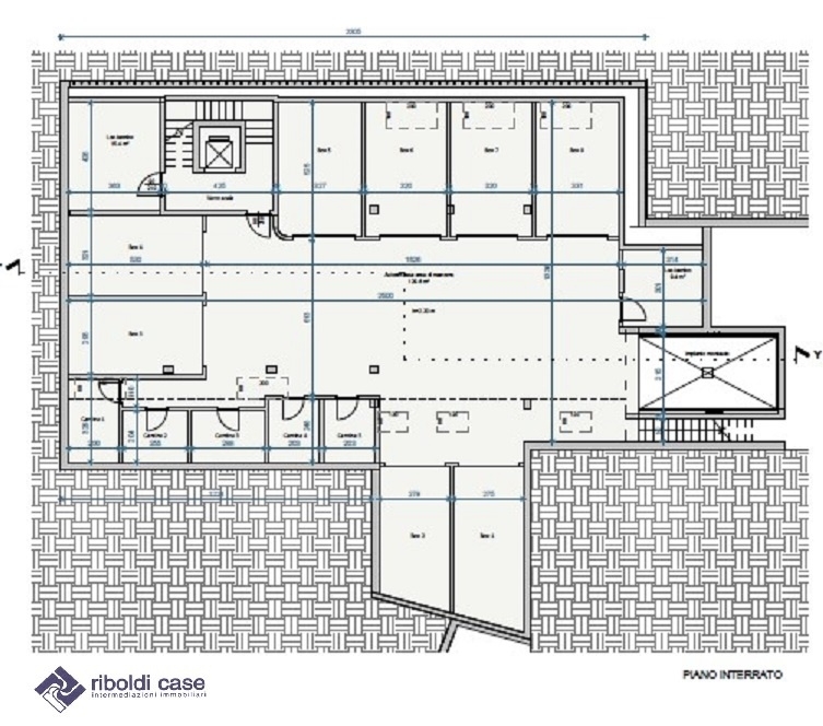
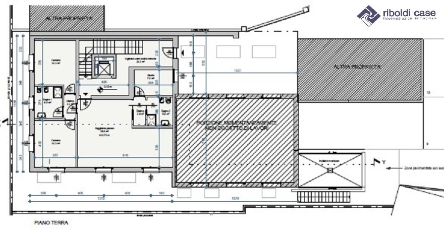
Residence armonia in tranquilla zona residenziale ma al contempo comoda con le principali vie di comunicazione, le scuole, i supermercati e tutti i servizi, in esclusivo ed elegante progetto immobiliare composto da sole tre unità- abitative, proponiamo in vendita splendido ed ampio appartamento di quattro locali al piano terra di ca. Mq 130 con giardino. La soluzione à cosଠcomposta: ingresso su grande e luminosa zona living con cucina a vista, disimpegno, due spaziose camere da letto, locale studio, doppi servizi e locale lavanderia. L'appartamento à caratterizzato da un design moderno con ampia scelta di personalizzazione con materiali di pregio; l'unità- abitativa à realizzata in classe energetica a, per garantire massimo risparmio, comfort abitativo, privacy e attenzione all'ambiente. Riscaldamento a pavimento e climatizzazione in tutti i locali. Cantina. Possibilità- box singolo, box doppio e posto auto scoperto. Euro 329.000 (rif. Giussano c.50 4 loc pt) (altre soluzioni su contatta l'agenzia con il servizio 'invia richiesta') classe energetica: a2 - ipe: 0.00kwh/mq anno