home page > Annunci immobiliari in Italia > Lombardia > Monza e della Brianza > Giussano > appartamenti in vendita > Scheda immobile

Appartamento in vendita a Giussano

COMPILA IL MODULO SOTTOSTANTE PER RICEVERE MAGGIORI INFORMAZIONI







Invia la richiesta ad altre agenzie
Accetto il trattamento dei miei dati



Riboldi paina

Via iv novembre 94
20833 Giussano (MB)

0362310531    Riferimenti: Riboldi Paina

Giussano
Prezzo: € 138.000
C
1
2
50
Piano terra



Descrizione:
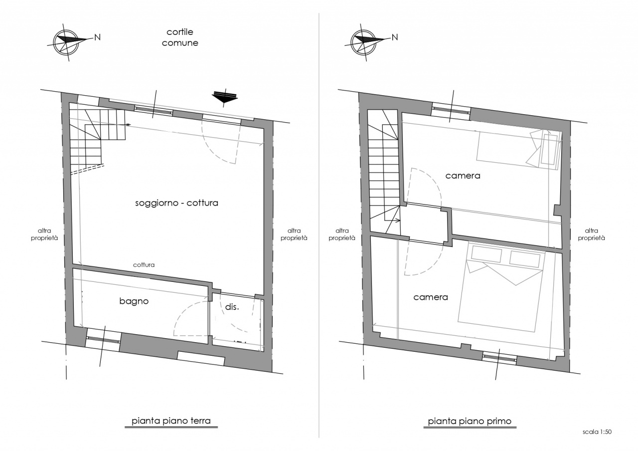
A paina di giussano, in soluzione terracielo senza spese condominiali, proponiamo in vendita appartamento di due locali in fase di totale ristrutturazione. La soluzione, disposta su due livelli abitativi, à cosଠcomposta: piano terra soggiorno con angolo cottura, disimpegno e lavanderia; scala interna che conduce al piano primo dove si sviluppa la zona notte con una camera con balcone e bagno ottime finiture: infissi doppi vetri pvc, predisposizione aria condizionata e antifurto. € 138.000 (rif. Giussano t.299) classe energetica: c - ipe: 0.00kwh/mq anno




Caratteristiche immobile:
Codice inserzione: 1776139835
Rif. Annuncio: GIUSSANO B.152
Provincia: Monza e della Brianza
Comune: Giussano
Superficie (Mq) : 50 Mq.
Tipo immobile: Appartamento
Stato immobile: ristrutturato
Piano: Piano terra
Camere: 1
Stato al rogito: Libero
Bagni: 2

Costi:
Prezzo € 138.000


Efficienza energetica:
Classe energetica: C
Riscaldamento: autonomo