Descrizione:
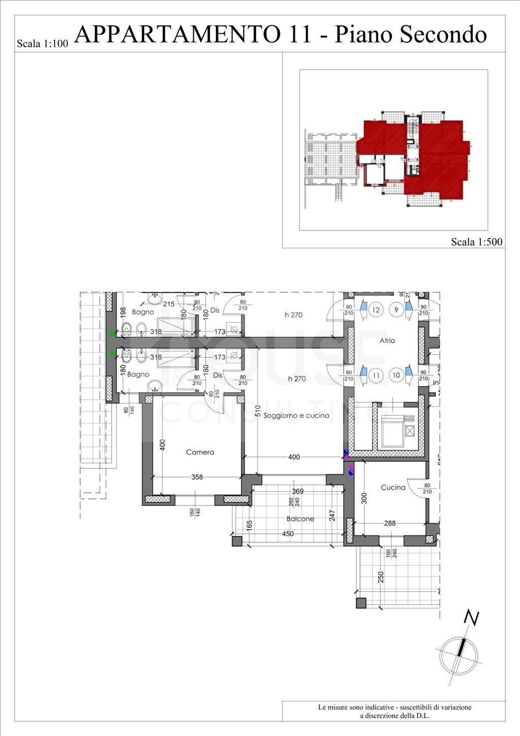
Residenza graziella appartamento rif. 11nel cuore di lissone, a pochi passi dalla stazione fs e dai principali servizi, nasce un nuovo ed esclusivo progetto residenziale.la 'residenza graziella' propone 26 appartamenti di prossima realizzazione, da 2 e 3 locali, con ampi terrazzi o giardini privati, pensati per offrire un perfetto equilibrio tra design moderno, comfort abitativo ed efficienza energetica.l'appartamento n. 11, situato al secondo piano, è composto da:- ingresso su luminoso soggiorno con ampia vetrata scorrevole e accesso al terrazzino- cucina abitabile- disimpegno zona notte- camera matrimoniale- bagnodisponibilità di box singoli a partire da € 25.000, dotati di serranda sezionale automatica con telecomando, oppure posti auto scoperti a € 15.000.costruzione ad alto risparmio energetico, con classe a e dotazioni di ultima generazione:- riscaldamento a pavimento- impianto fotovoltaico per la produzione di energia elettrica delle parti comuni- ventilazione meccanica controllata per il ricambio continuo dell'aria- isolamenti termici e acustici avanzati- serramenti in legno con triplo vetro certificati casaclima- predisposizione per antifurto perimetrale e climatizzazione- tapparelle motorizzate con cassonetto a scomparsa- porte interne con cerniere a scomparsa e serratura magneticafiniture di alto livello: gres porcellanato o parquet, illuminazione led su balconi e parti comuni, porte blindate e design contemporaneo.soluzioni ideali anche come investimento, grazie alla posizione strategica, vicina al centro di lissone, alla stazione ferroviaria e a tutti i principali servizi (scuole, negozi, ristoranti, supermercati).per informazioni:house&consulting arcore tel immagini hanno scopo puramente illustrativo e non costituiscono elemento contrattuale.le misure riportate sono indicative e possono subire variazioni in fase di realizzazione.