home page > Annunci immobiliari in Italia > Lombardia > Monza e della Brianza > Lissone > Negozi uffici capannoni in vendita > Scheda immobile

Negozi uffici capannoni in vendita a Lissone

COMPILA IL MODULO SOTTOSTANTE PER RICEVERE MAGGIORI INFORMAZIONI







Invia la richiesta ad altre agenzie
Accetto il trattamento dei miei dati



Casa e style

Via giuseppe mazzini, 1
20873 Cavenago di Brianza (MB)

0295335138    3469735918    Riferimenti: Angelo Acquafresca

Lissone
Prezzo: € 200.000
1
97
Piano terra



Descrizione:
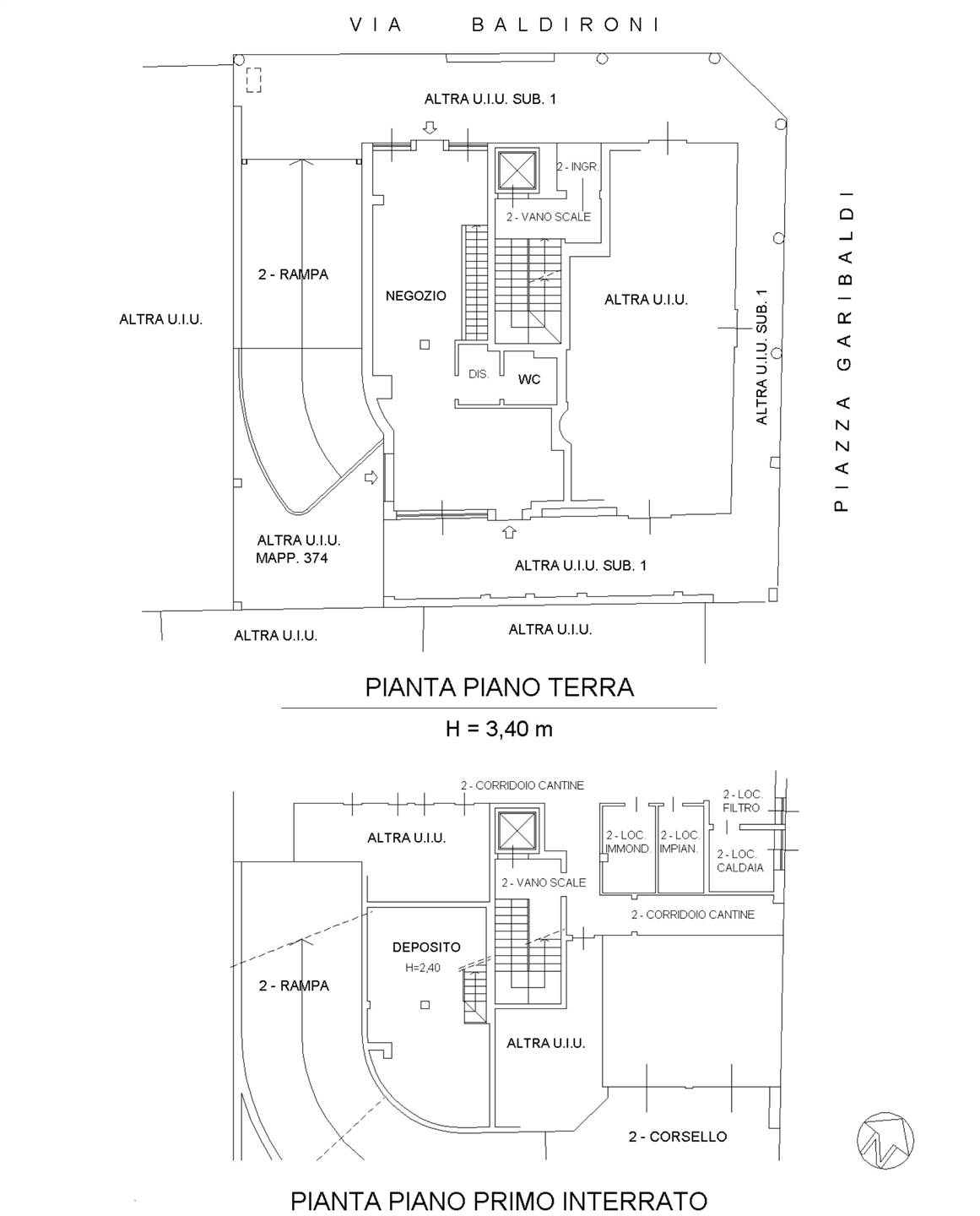
In pronta consegna. Negozio in vendita a lissone in centro paese in via baldironi 5. Con magazzino interno.- 97 mq commerciali- altezza soffitti 3,40- tre vetrine- triplo ingresso- bagno al piano terra negozio- magazzino di 25 mq con accesso da scala interna, altezza soffitti 2,40 m- vetri antisfondamento.il negozio a lissone è proposto in vendita da angelo acquafresca, fondatore e ceo di casa&style | immobiliare milano e brianza srl. Nello stesso stabile ultime disponibilità appartamenti in pronta consegna.comune di lissone | monza e brianzastrategica vicinanza a milano e monza.lissone, in provincia di monza e brianza, è un comune vivace e ben servito, ideale per famiglie e professionisti. Si trova in posizione strategica per chi lavora o si sposta verso milano, grazie alla vicinanza alla ss36 e alla stazione ferroviaria ben collegata con la linea suburbana. Distanze indicative: monza: 4 km, milano centro: 20 km, como: 35 km, lecco: 40 km, aeroporto di linate: 25 km, aeroporto di malpensa: 50 km. La città è inoltre dotata di scuole, servizi, negozi e spazi verdi, ed è a pochi minuti dal parco di monza, uno dei più grandi d'europa. Classe energetica: b




Caratteristiche immobile:
Codice inserzione: 1766975490
Rif. Annuncio: Lissone Negozio 3 ACQ
Provincia: Monza e della Brianza
Comune: Lissone
Superficie (Mq) : 97 Mq.
Tipo immobile: Negozi uffici capannoni
Stato immobile: nuovo
Piano: Piano terra
Bagni: 1

Costi:
Prezzo € 200.000


Efficienza energetica:
Riscaldamento: autonomo