home page > Annunci immobiliari in Italia > Lombardia > Monza e della Brianza > Meda > Case e ville a schiera in vendita > Scheda immobile

Case e ville a schiera in vendita a Meda

COMPILA IL MODULO SOTTOSTANTE PER RICEVERE MAGGIORI INFORMAZIONI







Invia la richiesta ad altre agenzie
Accetto il trattamento dei miei dati



Riva alessio sammy

Via san fermo della battaglia , 12
20822 Seveso (MB)

0362516595

Meda
Prezzo: € 380.000
3
143



Descrizione:
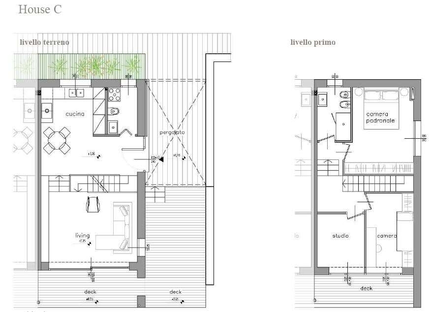
Meda confine con seveso, in posizione comoda con la super superstrada mi-meda, nuovo contesto residenziale di sole ville:proposta cporzione di bifamiliare libera su tre lati di mq. 107 con annesso portico e giardino privato di mq 102.internamente la soluzione si sviluppa su due livelli:piano terra: luminoso soggiorno con ampie vetrate, cucina separata e serviziopiano primo: tre camere da letto con terrazzino e serviziooltre a taverna di mq. 37 al piano interrato direttamente collegata direttamente al box doppio.€ 380.000,00disponibilità box doppio.consegna primavera / estate 2025 classe energetica:




Caratteristiche immobile:
Codice inserzione: 1758150705
Rif. Annuncio: V000843
Provincia: Monza e della Brianza
Comune: Meda
Superficie (Mq) : 143 Mq.
Tipo immobile: Case e ville a schiera
Camere: 3

Costi:
Prezzo € 380.000


Efficienza energetica: