home page > Annunci immobiliari in Italia > Lombardia > Monza e della Brianza > Seregno > Attici in vendita > Scheda immobile

Attici in vendita a Seregno

COMPILA IL MODULO SOTTOSTANTE PER RICEVERE MAGGIORI INFORMAZIONI







Invia la richiesta ad altre agenzie
Accetto il trattamento dei miei dati



Riboldi case intermediazioni immobiliari

Corso matteotti
20831 Seregno (MB)

0362238912    0362-235701    Riferimenti: Luisa Riboldi

Seregno
Prezzo: € 549.000
A4
3
2
125
Ultimo piano



Descrizione:
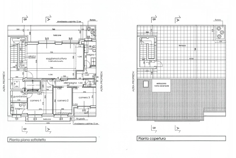
In zona residenziale, a due passi dal centro storico di seregno ed alla stazione, proponiamo ampio appartamento di quattro locali di ca. 125 mq all'ultimo piano, in contesto completamente ristrutturato a nuovo in classe a. La soluzione à cosଠcomposta: ingresso, ampio soggiorno con cucina a vista, disimpegno, camera matrimoniale con cabina armadio e bagno padronale, due camere singole, secondo servizio e ripostiglio. Scala interna che conduce al terrazzo di ca. 80 mq. Balconi di ca. 30 mq e zona lavanderia. Riscaldamento e raffrescamento a pavimento, predisposizione impianto domotico e allarme. Cantina compresa nel prezzo e possibilita' due posti auto. Rif attico q.331 euro 549.000 classe energetica: a4 - ipe: 0.00kwh/mq anno




Caratteristiche immobile:
Codice inserzione: 1776139695
Rif. Annuncio: ATTICO Q.331
Provincia: Monza e della Brianza
Comune: Seregno
Superficie (Mq) : 125 Mq.
Tipo immobile: Attici
Stato immobile: ristrutturato
Piano: Ultimo piano
Camere: 3
Tipologia giardino : Condominiale
Bagni: 2
Terrazze: 1

Costi:
Prezzo € 549.000


Efficienza energetica:
Classe energetica: A4
Riscaldamento: autonomo