home page > Annunci immobiliari in Italia > Lombardia > Monza e della Brianza > Verano Brianza > appartamenti in vendita > Scheda immobile

Appartamento in vendita a Verano Brianza

COMPILA IL MODULO SOTTOSTANTE PER RICEVERE MAGGIORI INFORMAZIONI







Invia la richiesta ad altre agenzie
Accetto il trattamento dei miei dati



Riboldi case intermediazioni immobiliari

Corso matteotti
20831 Seregno (MB)

0362238912    0362-235701    Riferimenti: Luisa Riboldi

Verano Brianza
Prezzo: € 134.000
C
1
1
60
Su più livelli



Descrizione:
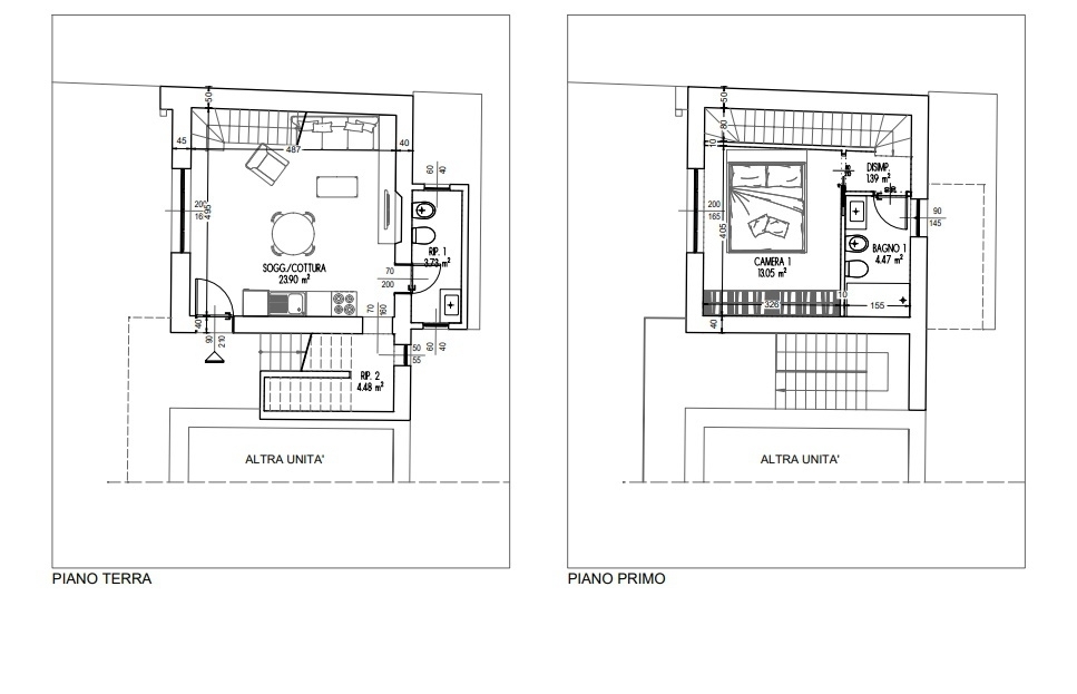
In zona centrale, comoda con tutti i principali servizi e vicino alla ss 36 in direzione milano monza lecco, proponiamo, in tipica corte brianzola, appartamento indipendente di due locali di ca. Mq 60, in fase di totale ristrutturazione. La soluzione à cosଠcomposta: piano terra con ingresso, soggiorno con cucina a vista e servizio; scala interna che conduce al piano primo con camera matrimoniale e secondo servizio finestrato. Sottotetto di proprieta'. Riscaldamento autonomo a pavimento, persiane e infissi di ultima generazione, predisposizione di aria condizionata. Possibilità- scelta capitolato. Rif. Verano b.12 - euro 134.000,00 classe energetica: c - ipe: 0.00kwh/mq anno




Caratteristiche immobile:
Codice inserzione: 1776139626
Rif. Annuncio: VERANO B.12
Provincia: Monza e della Brianza
Comune: Verano Brianza
Superficie (Mq) : 60 Mq.
Tipo immobile: Appartamento
Stato immobile: ristrutturato
Piano: Su più livelli
Camere: 1
Tipologia giardino : Condominiale
Bagni: 1

Costi:
Prezzo € 134.000


Efficienza energetica:
Classe energetica: C
Riscaldamento: autonomo