Descrizione:
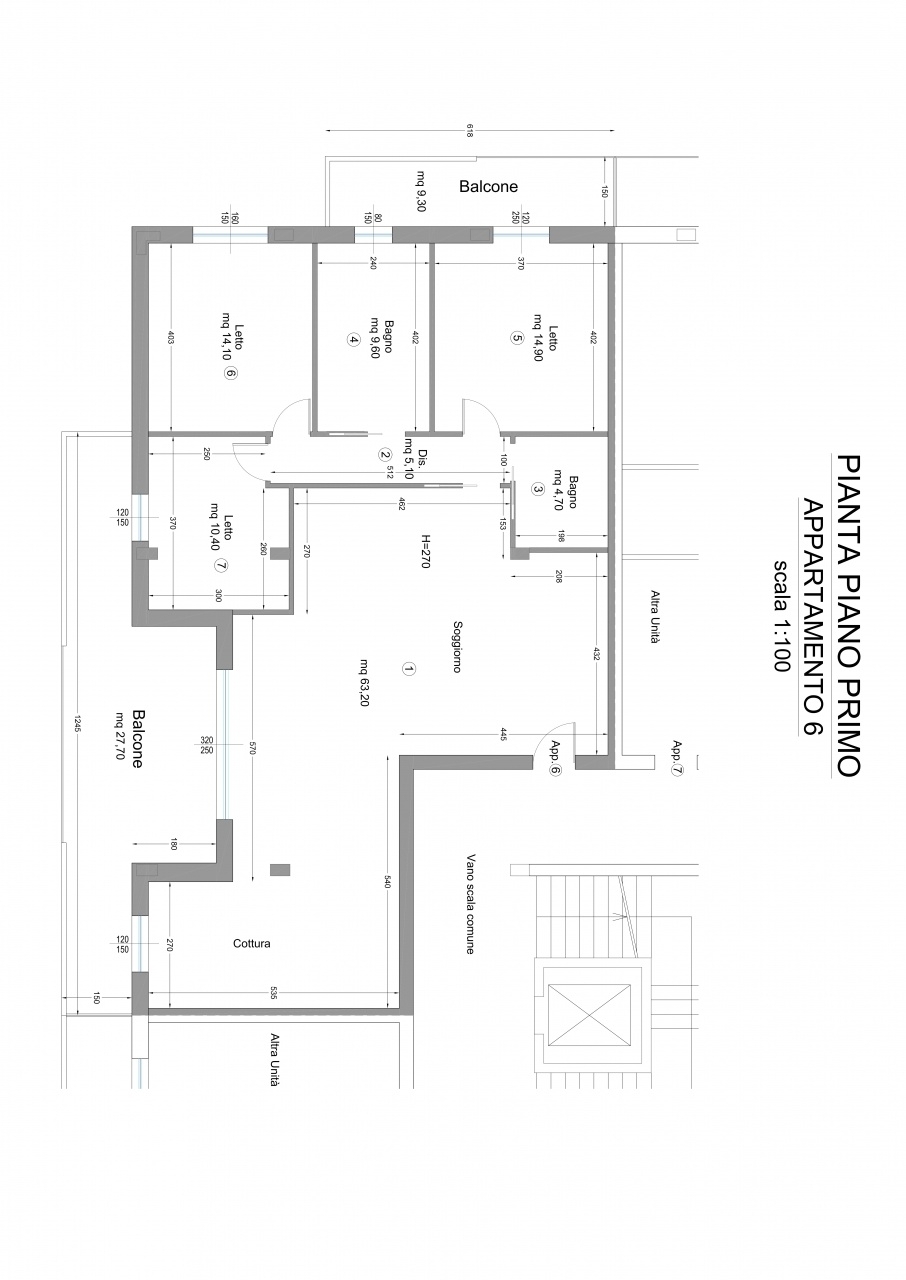
In belgioioso via alberico xii da barbiano n. 7 proponiamo di prossima realizzazione appartamenti unici nel loro genere dotati di riscaldamento a soffitto, ventilazione meccanica (vmc), predisposizione aria condizionata, privi di impianto a gas (completamente elettrici con pompa di calore centralizzata), ascensore, serramenti installati su monoblocchi coibentati dotati di tapparelle motorizzate e zanzariere.possibilità- di scelta delle pavimentzioni, rivestimenti cucina e bagni con sanitari a filo muro e rubinetteria di prima scelta.l'appartamento in oggetto sarà- composto da doppi servizi, due ampie camere matrimoniali e terza camera ed una zona giorno importante di oltre 60 mq calpestabili da poter arredare a propriio piacimento.completa questa incantevole soluzione due comodi terrazzi e garage di proprietà-.consegna dicembre 2026 classe energetica: a2 - ipe: 0.00kwh/mq anno