home page > Annunci immobiliari in Italia > Lombardia > Pavia > Garlasco > appartamenti in affitto > Scheda immobile

Appartamento in affitto a Garlasco

COMPILA IL MODULO SOTTOSTANTE PER RICEVERE MAGGIORI INFORMAZIONI







Invia la richiesta ad altre agenzie
Accetto il trattamento dei miei dati



Media services - mediazioni immobiliari professionali

Via roma n° 35/int. 2
27026 Garlasco (PV)

338.7452211    Riferimenti: Gabriele Bonini

Garlasco
Prezzo: € 650
C
1
1
75
1
1



Descrizione:
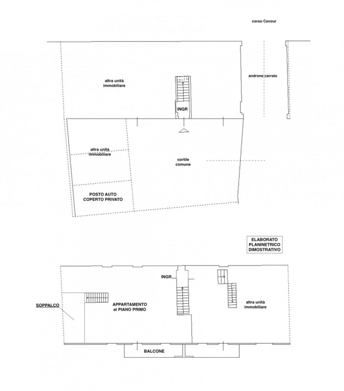
Proposta di locazione in esclusiva di studio immobiliare media services - mediazioni immobiliari professionali.garlasco - corso camillo benso di cavour n° 260/int. 9.affittasi solo referenziati.centro città: appartamento termo-autonomo completamente arredato, sito al piano primo (ultimo), cosù composto: ingresso, ampio living suddiviso in zona pranzo, soggiorno e cucina a vista, camera letto matrimoniale con soppalco e piccolo ripostiglio (sottotetto), bagno padronale con doccia, balconata, ripostiglio/vano caldaia (esterno), posto auto privato coperto.dotazioni: arredamento completo (esclusi tv e letto), caldaia autonoma, aria condizionata, stufa a pellet, serramenti in pvc con doppi vetri e zanzariere, pannelli solari, portoncino blindato.ridottissime spese condominiali!si richiede adeguato reddito dimostrabile!immobile disponibile da maggio 2026.per informazioni e visite in loco, consulente di riferimento: pochintesta carla,




Caratteristiche immobile:
Codice inserzione: 1773804949
Rif. Annuncio: CP_154
Provincia: Pavia
Comune: Garlasco
Superficie (Mq) : 75 Mq.
Tipo immobile: Appartamento
Stato immobile: usato
Anno costruzione/ristrutturazione: 2015
Piano: 1
Camere: 1
Arredato:
Posti auto scoperti: 1 posto auto
Bagni: 1

Costi:
Prezzo € 650


Efficienza energetica:
Classe energetica: C
Indice di prestazione energetica (EPgl): 76.69 kWh/mq annui
Riscaldamento: autonomo