0289741561 0546046748 0546046747 Riferimenti: Abilio S.p.A.
Descrizione:
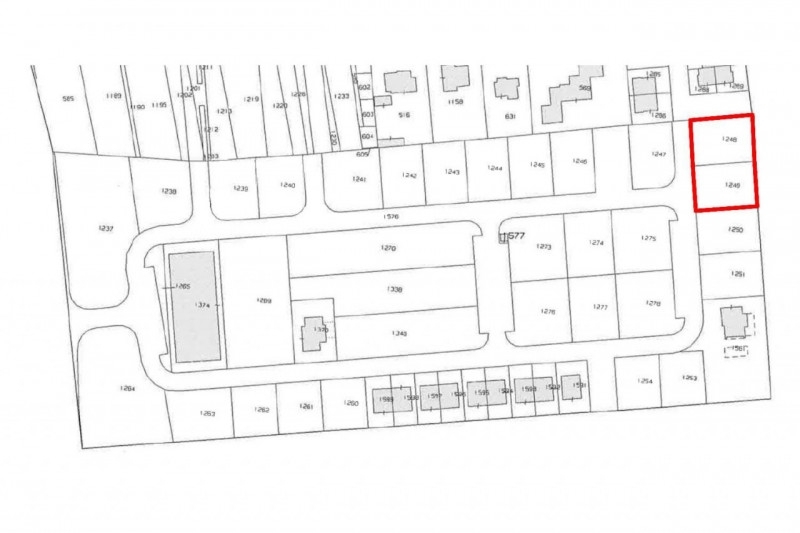
Quest'immobile viene venduto tramite asta online.terreno edificabile residenziale di 1.606 mq sito a inverno e monteleone (pv), frazione inverno, in via camillo benso conte di cavour.il bene è ubicato in zona residenziale semicentrale, e fa parte del programma integrato di intervento denominato 'le corti' (identificato quale pll 2' dal vigente strumento urbanistico) disciplinato da giusta convenzione. Per i terreni ricadenti in tale zona, complessivamente, l'indice di edificabilità territoriale massimo è di 1,00 mc/mq, per un'altezza massima di 8,70 m e un rapporto di copertura massimo
| Codice inserzione: | 1774924809 |
| Rif. Annuncio: | 22793 |
| Provincia: | Pavia |
| Comune: | Inverno e Monteleone |
| Superficie (Mq) : | 1606 Mq. |
| Tipo immobile: | Terreni |
| Stato immobile: | usato |
| Prezzo | € 20.000 |