home page > Annunci immobiliari in Italia > Lombardia > Varese > Castiglione Olona > Attività commerciali in vendita > Scheda immobile

Attività commerciali in vendita a Castiglione Olona

COMPILA IL MODULO SOTTOSTANTE PER RICEVERE MAGGIORI INFORMAZIONI







Invia la richiesta ad altre agenzie
Accetto il trattamento dei miei dati



Quimmo agency

Via galileo galilei 6
48018 Faenza (RA)

0299944698

Castiglione Olona
Prezzo: € 1.400.000
D
3
700



Descrizione:
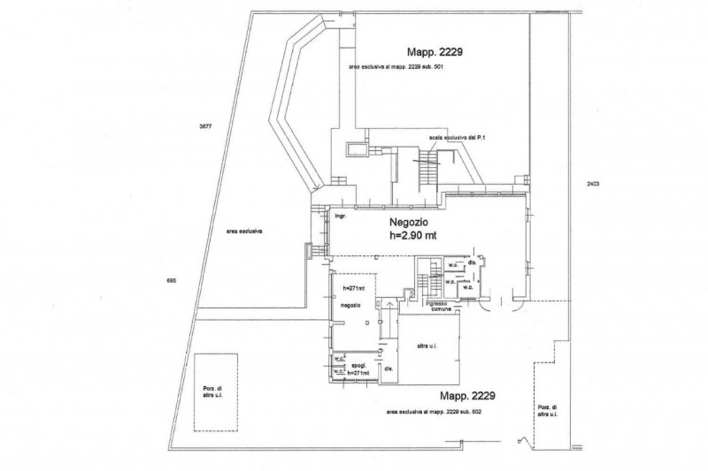
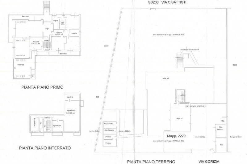
Garden cafÉ è situato a castiglione olona, lungo la strada statale varesina, con un traffico di circa 42.000 veicoli al giorno. L'attività comprende un bar caffetteria e un servizio di piccola ristorazione. Il locale è luminoso e ampio, con una superficie di circa 300 mq, oltre a quattro dehors esterni coperti e riscaldati. Inoltre, dispone di una piacevole area esterna piantumata e attrezzata.il locale offre 200 posti a sedere all'interno e 150 in giardino. è disponibile un parcheggio privato per i clienti e un parcheggio riservato per i collaboratori. La struttura è ideale per organizzare feste, eventi, matrimoni e battesimi, sia a pranzo che a cena. La cucina e il laboratorio sono attrezzati, e ci sono magazzini, celle frigorifere, servizi igienici e spogliatoi per i collaboratori. Gli ampi spazi per il carico e scarico merci includono 6 posti auto.il locale è situato in una villa di circa 700 mq, composta da 300 mq commerciali, 300 mq abitativi e circa 100 mq di taverna. Al primo piano si trova la parte residenziale, attualmente un'unica unità abitativa molto grande, che potrebbe essere trasformata in monolocali o bilocali con rispettive autorimesse. L'area esterna è di circa 1200 mq.il prezzo di vendita include l'attività commerciale, l'immobile commerciale e l'abitazione. Contattateci per maggiori informazioni.




Caratteristiche immobile:
Codice inserzione: 1757386586
Rif. Annuncio: 25905
Provincia: Varese
Comune: Castiglione Olona
Superficie (Mq) : 700 Mq.
Tipo immobile: Attività commerciali
Bagni: 3

Costi:
Prezzo € 1.400.000


Efficienza energetica:
Classe energetica: D
Riscaldamento: autonomo