home page > Annunci immobiliari in Italia > Lombardia > Varese > Cocquio-Trevisago > appartamenti in vendita > Scheda immobile

Appartamento in vendita a Cocquio-Trevisago

COMPILA IL MODULO SOTTOSTANTE PER RICEVERE MAGGIORI INFORMAZIONI







Invia la richiesta ad altre agenzie
Accetto il trattamento dei miei dati



Smarthome

San bernardino, 29
21018 Sesto Calende (VA)

0331808847    3807094617    Riferimenti: Franchini Riccardo

Cocquio-Trevisago
Prezzo: € 180.000
A1
2
80



Descrizione:
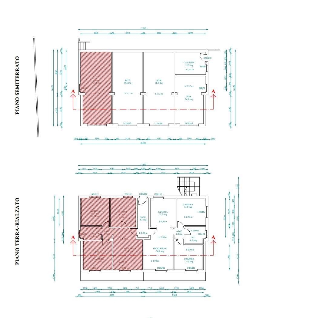
Cocquio trevisago - vendesi ultimi due appartamenti disponibili in posizione dominante siti al piano terra e primo piano, in piccolo contesto composto da 4 appartamenti. classe energetica a e b.gli immobili sono composti da ingresso, cucina abitabile, soggiorno, due camere, bagno, terrazzo con vista.completano le proprietà il box doppio di circa 35mq.gli appartamenti vengono consegnati completamente ristrutturati a nuovo, con impianto domotica possibilità di scegliere le finiture come da capitolato.prezzo chiavi in mano.immobile in gestione presso la sede operativa di sesto calende, via san bernardino 29 agente di riferimento katia minici tel classe energetica: a 41,78 kwh/m2 a




Caratteristiche immobile:
Codice inserzione: 1758842010
Rif. Annuncio: VMK1617
Provincia: Varese
Comune: Cocquio-Trevisago
Superficie (Mq) : 80 Mq.
Tipo immobile: Appartamento
Camere: 2

Costi:
Prezzo € 180.000


Efficienza energetica:
Classe energetica: A1
Indice di prestazione energetica (EPgl): 41.78 kWh/mq annui