home page > Annunci immobiliari in Italia > Lombardia > Varese > Sesto Calende > appartamenti in vendita > Scheda immobile

Appartamento in vendita a Sesto Calende

COMPILA IL MODULO SOTTOSTANTE PER RICEVERE MAGGIORI INFORMAZIONI







Invia la richiesta ad altre agenzie
Accetto il trattamento dei miei dati



Immobili all'asta

Viale sabotino 4
20121 Milano

0280888267    Riferimenti: Ivano De Natale

Sesto Calende
Prezzo: € 42.000
F
1
1
77
1



Descrizione:
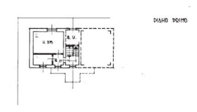
Appartamento all'asta in via piave, sesto calende (va)si propone il diritto di piena proprietà su immobile ad uso residenziale sito in via piave 6/e, nel comune di sesto calende (va).nello specifico si tratta di un appartamento, composto da:piano terra: soggiorno-cottura, cucina e bagno piano primo: camera da letto, disimpegno, bagno e porzione di balconepiano ammezzato: ripostiglio.accessori- cantina. l'unità abitativa risulta avere una superficie di circa 77mq. dati catastalil'unità immobiliare risulta identificata al catasto fabbricati come segue:foglio 10, particella 3796, sub. 505, categoria a/3, classe 4, consistenza vani 4,5, piano t-1, rendita 441,57 euro.chi siamoimmobiliallasta.it aiuta le persone a comprare casa all'asta e migliorare la qualità della loro vita senza correre rischi, grazie ad una piattaforma specializzata in aste immobiliari sviluppata intorno alle vere esigenze di chi cerca casa all'asta e ad un team di 30 professionisti esperti dedicato, che ti guida passo passo in un acquisto sicuro e certificato da una tripla garanzia sull'immobile e sul servizio. a differenza delle agenzie troverai: + varietà: gestiamo migliaia di immobili ogni mese+ tranquillità: tripla garanzia che ti tutela da ogni rischio sull'acquistoalcuni risultati oggettivi nell'ultimo anno e mezzo:- 8.600 immobili gestiti- +500 clienti portati all'asta - +200 case aggiudicate, per un valore totale di 15 milionicontattaci subito per parlare con uno dei nostri consulenti che ti aiuterà a trovare la tua casa all'asta senza correre rischi.




Caratteristiche immobile:
Codice inserzione: 1763697483
Rif. Annuncio: ST12269
Provincia: Varese
Comune: Sesto Calende
Superficie (Mq) : 77 Mq.
Tipo immobile: Appartamento
Stato immobile: usato
Anno costruzione/ristrutturazione: 1960
Piano: 1
Camere: 1
Bagni: 1

Costi:
Prezzo € 42.000


Efficienza energetica:
Classe energetica: F
Indice di prestazione energetica (EPgl): 175 kWh/mq annui