home page > Annunci immobiliari in Italia > Marche > Ancona > Camerano > Negozi uffici capannoni in affitto > Scheda immobile

Negozi uffici capannoni in affitto a Camerano

COMPILA IL MODULO SOTTOSTANTE PER RICEVERE MAGGIORI INFORMAZIONI







Invia la richiesta ad altre agenzie
Accetto il trattamento dei miei dati



Evvivacasa

Via giovanni agnelli, 4
60027 Osimo (AN)

3516006584    3516006584    Riferimenti: Stefano Santilli

Camerano
Prezzo: € 2.000
200



Descrizione:
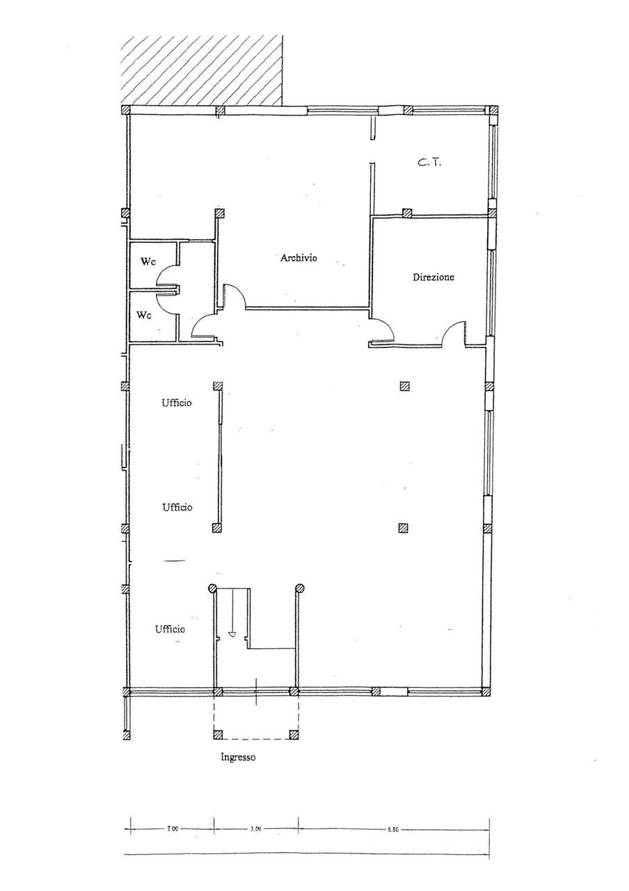
Se la tua azienda ha bisogno di spazi interni facilmente ridisegnabili con pareti divisorie, allora fermati qua. in zona aspio del comune di camerano, vicinissima all'autostrada a14 e alle principali arterie di comunicazione viaria, proponiamo ampio locale al piano terra senza barriere architettoniche. Può essere adibito a ufficio, oppure a negozio, o persino come laboratorio. Tuttavia bisogna tenere presente che l'altezza interna è limitata a 2,50 metri.molto vicino a numerosi parcheggi liberi, dispone addirittura di 4 posti auto riservati proprio lato ingresso. Inoltre risulta facilmente raggiungibile anche con altri mezzi, ad esempio treno (fermata camerano(ikea) oppure con autobus (fermata ikea).internamente è diviso in 4 vani su una superficie di oltre 200 mq, dove quello principale è fondamentalmente di tipo open-space. In fondo si trovano sia un magazzino/archivio e sia una stanza privata, oltre al comodo ripostiglio che funge anche da centrale termica. Doppi servizi con antibagno, già separati per uomini e donne. Doppia vetrina sul lato frontale.tutti gli ambienti sono climatizzati con aria calda/fredda tramite fan-coil e impianto alimentato a metano. esiste anche la possibilità di utilizzare una parte degli arredi già presenti (tipologia ufficio).ingresso indipendente, nessuna spesa condominiale da prevedere.contratto di locazione commerciale di lunga durata. Depositi anticipati e altre garanzie si possono negoziare in base alla reputazione dell'azienda cliente.riferimento ss116.classe energetica: non dichiarata




Caratteristiche immobile:
Codice inserzione: 1776726716
Rif. Annuncio: SS116
Provincia: Ancona
Comune: Camerano
Superficie (Mq) : 200 Mq.
Tipo immobile: Negozi uffici capannoni

Costi:
Prezzo € 2.000


Efficienza energetica: