home page > Annunci immobiliari in Italia > Marche > Ancona > Castelbellino > Negozi uffici capannoni in vendita > Scheda immobile

Negozi uffici capannoni in vendita a Castelbellino

COMPILA IL MODULO SOTTOSTANTE PER RICEVERE MAGGIORI INFORMAZIONI







Invia la richiesta ad altre agenzie
Accetto il trattamento dei miei dati



Quimmo agency

Via galileo galilei 6
48018 Faenza (RA)

0299944698

Castelbellino
Prezzo: € 52.000
2
68
1



Descrizione:
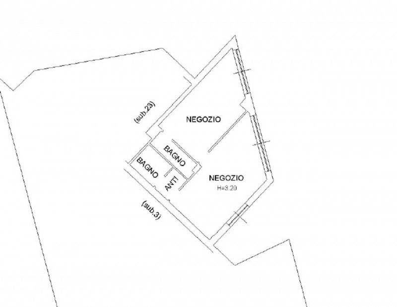
In vendita a castelbellino, in largo 2 giugno, locale commerciale di circa 68 mq, situato al piano terra di un edificio di recente costruzione (anno 2006) a destinazione mista residenziale e commerciale.l'immobile si compone di due ambienti principali adibiti a negozio, dotati di ampie vetrine su strada che garantiscono ottima visibilità e luminosità naturale, oltre a due servizi igienici con antibagno. La pianta regolare e la disposizione interna rendono gli spazi facilmente adattabili a diverse attività commerciali o professionali.le finiture sono di buon livello, con infissi in alluminio e vetrocamera, pavimentazioni in gres e impianti di recente realizzazione.completa la proprietà un'autorimessa in comproprietà situata al piano interrato del fabbricato dove sono presenti i posti auto.soluzione ideale per chi cerca un locale moderno, funzionale e in posizione comoda e ben servita.




Caratteristiche immobile:
Codice inserzione: 1761016045
Rif. Annuncio: 2537419
Provincia: Ancona
Comune: Castelbellino
Superficie (Mq) : 68 Mq.
Tipo immobile: Negozi uffici capannoni
Stato immobile: usato
Anno costruzione/ristrutturazione: 2006
Posti auto scoperti: 1 posto auto
Bagni: 2

Costi:
Prezzo € 52.000


Efficienza energetica:
Riscaldamento: autonomo