home page > Annunci immobiliari in Italia > Marche > Ancona > Chiaravalle > Negozi uffici capannoni in vendita > Scheda immobile

Negozi uffici capannoni in vendita a Chiaravalle

COMPILA IL MODULO SOTTOSTANTE PER RICEVERE MAGGIORI INFORMAZIONI







Invia la richiesta ad altre agenzie
Accetto il trattamento dei miei dati



Prima re srl

Via 1 maggio, 20
60121 Ancona

0712905445

Chiaravalle
Prezzo: € 795.000
F
1350



Descrizione:
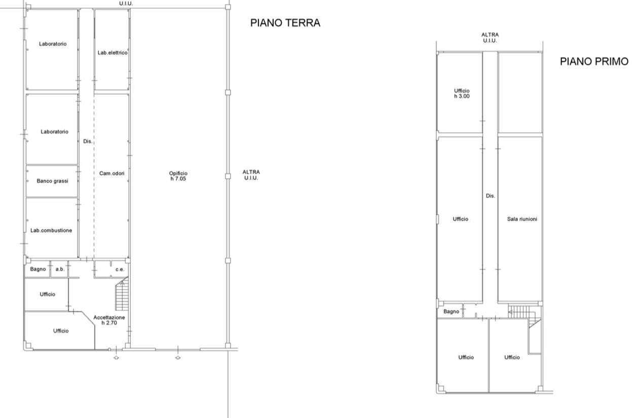
Rif. 562sq-ggproponiamo in vendita un capannone di circa 1.350 mq, finestrato su tre lati, cosù suddivisi:uffici: 360 mq complessivi, moderni e funzionalilaboratori piano terra: 270 mq, con certificazione reilaboratori/uffici piano primo: 270 mqopificio: 450 mq con altezza di 7 metri, ideale per produzione e stoccaggioservizi: 4 bagni a servizio di uffici ed opificioa completare la proprietà, una corte esclusiva di 1.184 mq circa, perfetta per parcheggio, carico/scaricomerci e logistica.l'immobile è dotato di impianto fotovoltaico da 60 kw, con accumulo che assicura efficienza energetica eun sensibile abbattimento dei costi di gestione.la posizione è strategica: facilmente accessibile, con due ingressi indipendenti con portoni carrabili suentrambi i lati dell'edificio, che rendono agevoli le operazioni e la movimentazione, a pochi minuti dalcasello autostradale di ancona nord.una soluzione ideale per aziende produttive, artigianali o logistiche che necessitano di spazi ampi, funzionali e ben organizzati.se sei interessato a questo immobile, il riferimento è 562sq-gg.contattaci indicando questo riferimento per avere tutte le informazioni che ti interessano.il nostro numero di telefono è oppure invia una mail a nostri agenti sono a tua completa disposizione!classe energetica: f 98,33 kwh/m3 a




Caratteristiche immobile:
Codice inserzione: 1757545913
Rif. Annuncio: 562SQ-GG
Provincia: Ancona
Comune: Chiaravalle
Superficie (Mq) : 1350 Mq.
Tipo immobile: Negozi uffici capannoni

Costi:
Prezzo € 795.000


Efficienza energetica:
Classe energetica: F
Indice di prestazione energetica (EPgl): 98.33 kWh/mc annui