home page > Annunci immobiliari in Italia > Marche > Ancona > Chiaravalle > Negozi uffici capannoni in vendita > Scheda immobile

Negozi uffici capannoni in vendita a Chiaravalle

COMPILA IL MODULO SOTTOSTANTE PER RICEVERE MAGGIORI INFORMAZIONI







Invia la richiesta ad altre agenzie
Accetto il trattamento dei miei dati



Qualitycasa

Corso giacomo matteotti, 93
60033 Chiaravalle (AN)

0717451299    3452339932    Riferimenti: Nazzareno RAFFAELLI

Chiaravalle
Prezzo: € 43.000
F
75



Descrizione:
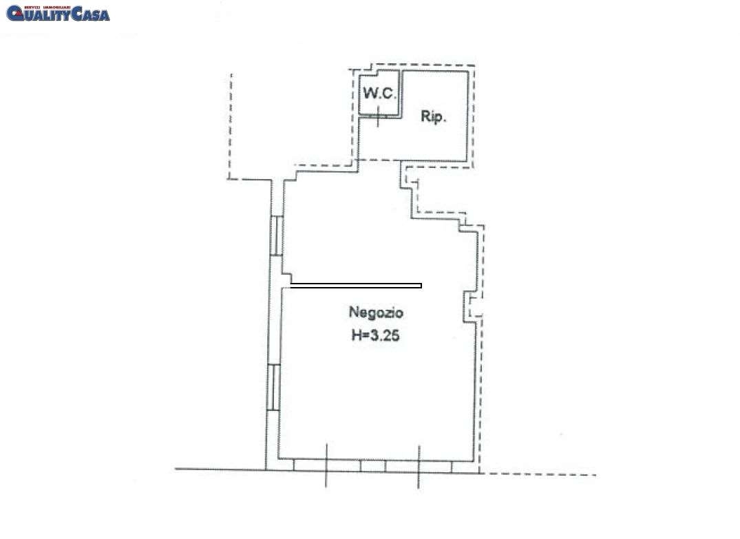
Agenzia immobiliare qualitycasa propone in vendita negozio - ufficio di 64 m in vendita a chiaravalle, occupato con contratto di locazione commerciale dal 2021, canone mensile €450 (rendita lorda 12,56%)composizione: ingresso da due vetrine, su due vani con ripostiglio e servizio igienico.rif.chc94 - €43.000referente nazzareno raffaelli classe energetica: f




Caratteristiche immobile:
Codice inserzione: 1770595864
Rif. Annuncio: CHC094
Provincia: Ancona
Comune: Chiaravalle
Superficie (Mq) : 75 Mq.
Tipo immobile: Negozi uffici capannoni

Costi:
Prezzo € 43.000


Efficienza energetica:
Classe energetica: F