0289741561 0546046748 0546046747 Riferimenti: Abilio S.p.A.
Descrizione:
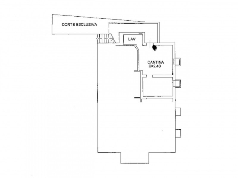
Quest'immobile viene venduto tramite asta online.cantina e area urbana site a monte san vito (an), in via traversa.i beni sono ricompresi all'interno di un complesso residenziale, l'edificio è composto da tre piani fuori terra ed un piano seminterrato.trattasi di locale cantina dotato di lavanderia con corte esclusiva e rampa di accesso.il bene risulta non conforme, è presente una tramezzatura interna con apertura che divide l'ambiente, un bagno e una cucina.per maggiori informazioni vedasi documentazione allegata.immobile descritto in perizia allegata come 'lotto 5'.offerta minima: 8798 euro.quimmo.it: iniziativa tech del gruppo illimity specializzata nell'intermediazione digitale di beni immobili provenienti da tribunali, nuovi sviluppi immobiliari, financial institutions e libero mercato.da oltre 10 anni quimmo.it è il portale specializzato nella compravendita di immobili tramite asta giudiziaria. Il portale è infatti iscritto nel registro gestori della vendita telematica e nell'elenco dei siti web autorizzati allo svolgimento della pubblicità legale. Con quimmo puoi scegliere tra migliaia di immobili di ogni tipo e partecipare alle aste online per acquistare la soluzione più adatta alle tue esigenze.affidati all'esperienza decennale dei nostri esperti e richiedi l'assistenza gratuita per la presentazione e compilazione dell'offerta.contattaci subito.
Codice inserzione: | 1760583070 |
Rif. Annuncio: | 2536196 |
Provincia: | Ancona |
Comune: | Monte San Vito |
Superficie (Mq) : | 40 Mq. |
Tipo immobile: | Garage |
Stato immobile: | usato |
Camere: | 1 |
Bagni: | 1 |
Prezzo | € 8.798 |