home page > Annunci immobiliari in Italia > Marche > Ancona > Offagna > Case e ville indipendenti in vendita > Scheda immobile

Case e ville indipendenti in vendita a Offagna

COMPILA IL MODULO SOTTOSTANTE PER RICEVERE MAGGIORI INFORMAZIONI







Invia la richiesta ad altre agenzie
Accetto il trattamento dei miei dati



Agenzia immobiliare consul capital immobiliare srl

Corso amendola 41/a
60121 Ancona

071204905    Riferimenti: Simona

Offagna
Prezzo: € 110.000
3
3
190
1



Descrizione:
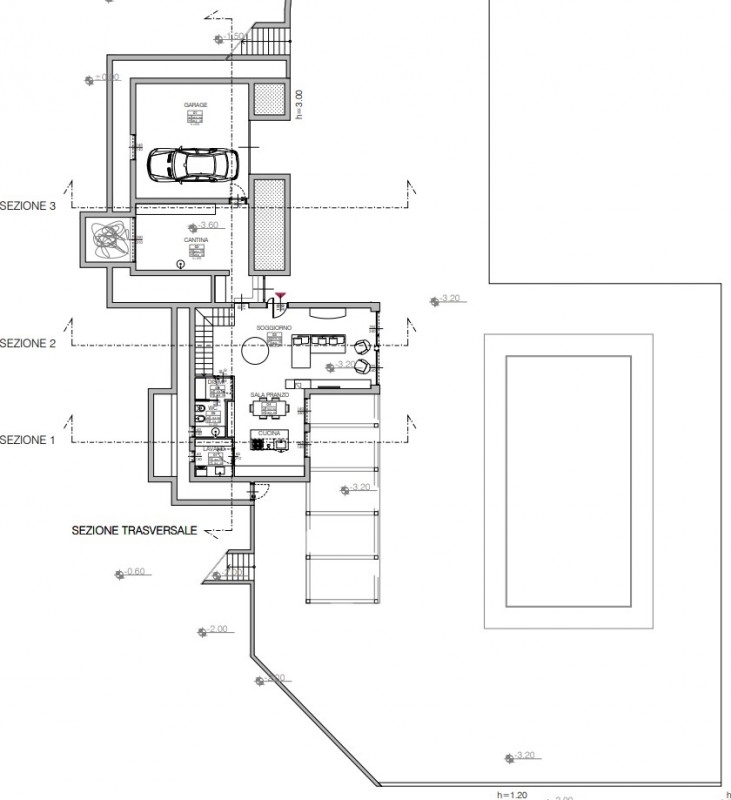
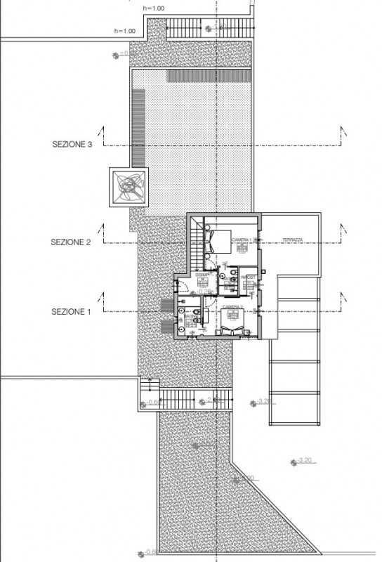
L124 offagna vendiamo un lotti edificabile di 10.000 mq per realizzare ville singole di circa 190 mq sviluppate al piano terra e primo. Le soluzioni potranno essere personalizzate , in base alle proprie esigenze abitative, € 110.000,00 costi progettuali e accessori a carico dell'acquirente




Caratteristiche immobile:
Codice inserzione: 1775702354
Rif. Annuncio: L124
Provincia: Ancona
Comune: Offagna
Superficie (Mq) : 190 Mq.
Tipo immobile: Case e ville indipendenti
Piano: 1
Camere: 3
Bagni: 3
Terrazze: 1

Costi:
Prezzo € 110.000


Efficienza energetica: