home page > Annunci immobiliari in Italia > Marche > Ancona > Senigallia > appartamenti in vendita > Scheda immobile

Appartamento in vendita a Senigallia

COMPILA IL MODULO SOTTOSTANTE PER RICEVERE MAGGIORI INFORMAZIONI







Invia la richiesta ad altre agenzie
Accetto il trattamento dei miei dati



Quimmo agency

Via galileo galilei 6
48018 Faenza (RA)

0299944698

Senigallia
Prezzo: info in agenzia
E
3
3
610



Descrizione:
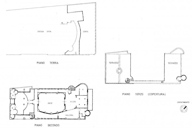
Attico all'ultimo piano di un edificio di tre piani fuori terra ed un seminterrato. L'immobile libero su 4 lati e con ingresso indipendente, si estende per tutto il secondo piano per una superficie di oltre 400 attorno ad un patio centrale di circa 90 mq. L'attico dispone di diverse zone soggiorno, una cucina con camino, un patio centrale, tre camere, e tre bagni oltre lavanderia e ripostigli. Sono presenti 3 balconi con vista mare e sulla copertura si trova una piscina e un solarium. Garage di circa 70 mq.




Caratteristiche immobile:
Codice inserzione: 1757386952
Rif. Annuncio: 25712
Provincia: Ancona
Comune: Senigallia
Superficie (Mq) : 610 Mq.
Tipo immobile: Appartamento
Stato immobile: usato
Anno costruzione/ristrutturazione: 1994
Camere: 3
Bagni: 3

Costi:
Prezzo info in agenzia


Efficienza energetica:
Classe energetica: E
Riscaldamento: autonomo