home page > Annunci immobiliari in Italia > Marche > Ancona > Senigallia > Rustici in vendita > Scheda immobile

Rustici in vendita a Senigallia

COMPILA IL MODULO SOTTOSTANTE PER RICEVERE MAGGIORI INFORMAZIONI







Invia la richiesta ad altre agenzie
Accetto il trattamento dei miei dati



Casa verde immobiliare snc

Via fratelli bandiera 25
60019 Senigallia (AN)

07165032    Riferimenti: Segreteria

Senigallia
Prezzo: € 320.000
G
450
Piano terra



Descrizione:
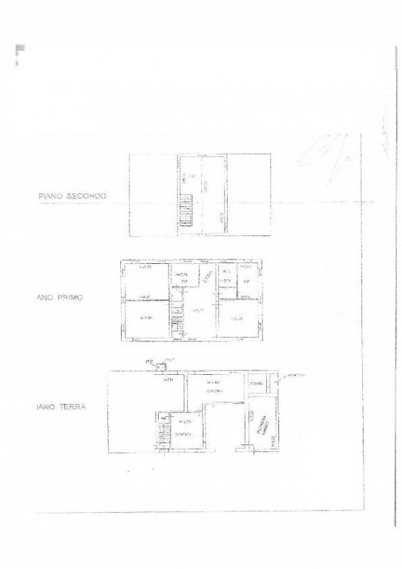
Senigallia zona bettolelle casa colonica da ristrutturare disposta su due livelli per tot. Mq. 450 completa di corte esclusiva di circa 3.000 mq. esperienza, monitoraggio costante del mercato immobiliare, offerta completa di servizi professionali e serietà lasciano il segno sui nostri clienti: un sorriso!nel 1993 un gruppo di professionisti, già operantinel settore immobiliare, sentono l'esigenza di creare una struttura seria, professionale e flessibile a senigallia, nasce cosùcasa verde immobiliare.tutti coloro che entrano in contatto con il personale dell'agenzia, hanno a che fare con persone competenti, credibili e disponibili. Il rapporto con il cliente è basato su elementi quali lafiducia, lacredibilità, lalealtà, l'affidabilitàe ildinamismo, d'altronde, è da sempre al centro della filosofia dicasa verde immobiliare.oggi, operante asenigallia (an), marotta (pu) e hinterland, è una società in continua evoluzione.da sempre l'obiettivo prioritario è la completa soddisfazione del cliente che chiede puntualità e competenza per risolvere tutte le questioni finanziarie, contrattuali e normative relative agli immobili davendere o acquistare.tutto ciò ha contribuito allo sviluppo in costante crescita.far vivere lacompravendita immobiliarecon lamassima soddisfazionee senza stress, il nostro principio è quello di non deludere perchè non esiste miglior promoter di un cliente soddisfatto.il vostro migliore investimento... I nostri risultati!




Caratteristiche immobile:
Codice inserzione: 1776825602
Rif. Annuncio: 12087
Provincia: Ancona
Comune: Senigallia
Zona: Bettolelle  
Superficie (Mq) : 450 Mq.
Tipo immobile: Rustici
Stato immobile: usato da riattare
Piano: Piano terra

Costi:
Prezzo € 320.000


Efficienza energetica:
Classe energetica: G
Indice di prestazione energetica (EPgl): 175 kWh/mq annui