home page > Annunci immobiliari in Italia > Marche > Ascoli Piceno > Grottammare > appartamenti in vendita > Scheda immobile

Appartamento in vendita a Grottammare

COMPILA IL MODULO SOTTOSTANTE PER RICEVERE MAGGIORI INFORMAZIONI







Invia la richiesta ad altre agenzie
Accetto il trattamento dei miei dati



Re casa s.r.l.s.

Via san francesco n. 13 b/c
63074 San Benedetto del Tronto (AP)

0735365467    3478329788    Riferimenti: Stefano Re

Grottammare
Prezzo: Info in agenzia
A4
2
1
65
1



Descrizione:
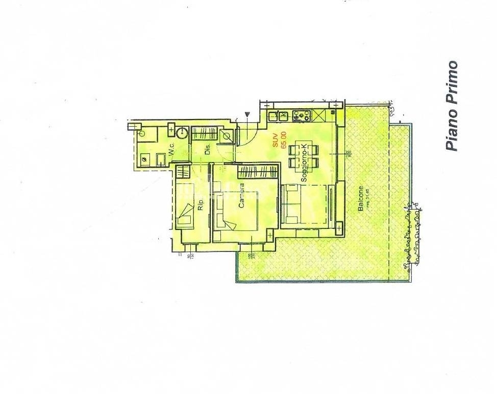
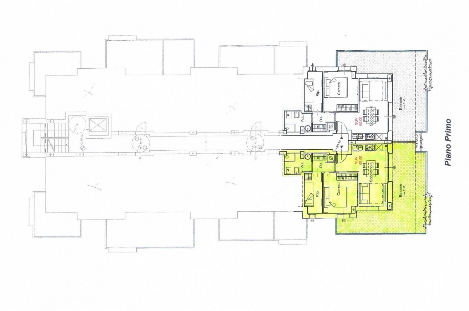
Grottammare, viale de gasperi, presso nuovo complesso residenziale terrazze sul mare in corso di costruzione, fronte mare.appartamento al piano primo con ascensore: superficie di mq 65 suddivisi nel seguente modo: ingresso su soggiorno con angolo cottura, una camera da letto matrimoniale, una cameretta, disimpegno con angolo lavanderia, un bagno con doccia, terrazzo perimetrale per complessivi mq 31,40. Bellsisima vista mare. Esposizione sud - est. la parte acquirente potrà se richiesto apportare modifiche inerenti la distribuzione interna degli spazi, secondo le proprie necessità, nel rispetto delle aperture esterne e delle condutture.finiture: i pavimenti dei soggiorni, cucine, camere e disimpegni, saranno realizzati con una pavimentazione in gres, i rivestimenti dei bagni saranno realizzati in piastrelle di grès porcellanato della marazzi grande lastri oppure ditte similari in formato 60 x 120 cm, delle seguenti serie e colori a scelta del cliente, i portoncini di primo ingresso alle unità abitative saranno del tipo blindato di dimensioni 90x210cm, con livello di antieffrazione di classe 3 ad anta singola saldamente affrancati alla struttura, ad elevati prestazioni di isolamento acustico e termico, i portoncini saranno dotati di: porta di sicurezza in acciaio rivestita di legno, ad una sola anta, rostri fissi, limitatore di apertura a traslazione, anta di spessore costruita in acciaio zincato, 2 cerniere registrabili nei due sensi in acciaio, telaio su tre lati in acciaio zincato di spessore, angolari ferma pannello, isolamento acustico fino a 40 db, la progettazione dell'edificio e dei relativi impianti è stata concepita per raggiungere un'elevata classificazione energetica, in conformità al d.m. 26 giugno 2015 e alle recenti disposizioni orientate alla neutralità carbonica degli edifici, in particolare, l'edificio verrà certificato in classe a4. infissi: fornitura e posa in opera di infissi esterni in tapparelle motorizzate in alluminio verniciate e coibentate in poliuretano ad alta densità, motorizzate e in preverniciato con ferramenta di chiusura.fornitura e posa in opera di infissi esterni in alluminio e/o pvc a taglio termico, inoltre ,i controtelai di ciascun infisso (nel caso di tamponatura con blocco in laterizio) saranno della pasini o similari con vmc relativo al ricircolo dell'aria integrato mentre nel caso vi sia tamponatura esterna in cartongesso verranno montati in alternativa controtelai tradizionali (con vmc puntuale).la climatizzazione estiva e invernale, l'impianto di riscaldamento, raffrescamento e sanitario sarà puntuale del tipo idronico a mezzo scaldabagno, pompe di calore con riscaldamento a pavimento, il tutto alimentato ad energia elettrica. Per il raffreddamento ci sono gli idrosplit e/o fan-coil con impianto puntuale. Tutto l'impianto sarà completo e funzionante a norma della l.n°42/90 e ss.mm.ii. Inoltre sotto l'aspetto condominiale, l'alimentazione elettrica sarà supportata da impianto fotovoltaico montato in sommità del lastrico solare. finitura del pavimento: può essere costituita da piastrelle, gres porcellanato idoneo alla trasmissione del calore. è importante che lo strato di finitura abbia un'elevata conducibilità termica, per massimizzare l'efficienza dell'impianto. Collettori e regolazione ogni impianto radiante è collegato a un collettore (o più collettori, se l'abitazione presenta più zone), dotato di: rubinetti di intercettazione sulle partenze e sui ritorni, per consentire eventuali interventi di manutenzione; flussimetri o misuratori di portata, che permettono di bilanciare correttamente ciascun circuito.soluzione unica nel suo genere per chi è alla ricerca di un immobile di pregio ubicato in 1° fila mare.




Caratteristiche immobile:
Codice inserzione: 1762926229
Rif. Annuncio: 9665
Provincia: Ascoli Piceno
Comune: Grottammare
Superficie (Mq) : 65 Mq.
Tipo immobile: Appartamento
Anno costruzione/ristrutturazione: 2025
Piano: 1
Camere: 2
Stato al rogito: Libero
Esposizione: Sudest
Bagni: 1

Costi:
Prezzo Info in agenzia


Efficienza energetica:
Classe energetica: A4
Indice di prestazione energetica (EPgl): 41.02 kWh/mq annui
Riscaldamento: autonomo
Tipologia riscaldamento: energia elettrica